ph@maisonmakelaars.nl 077 308 29 46
Verkocht

Willem Van Heukelomstraat 2 Helden

Omschrijving

Lekker rustig wonen in een doodlopende straat, langs een park en met vrij uitzicht. Klinkt dat goed? Deze twee onder 1 kapwoning ligt aan het einde van de straat, heeft maar aan 1 kant buren en vanuit de woonkamer heb je prachtig vrij uitzicht over het park! De woonkamer is heerlijk ruim en loopt over in de open keuken. Achter de woning ligt een overkapping die geheel af te sluiten is met verandazeilen zodat je hier in het voorjaar al lekker kunt zitten. Op de eerste verdieping liggen drie grote slaapkamers en een badkamer met een ligbad en een douche. Een vaste trap leidt naar de zolder waar je de vierde slaapkamer vindt en veel bergruimte. In de achtertuin staat een diversiteit aan grote planten zoals palmbomen, oleander en riet langs de vijver. In het houten tuinhuis kun je je fietsen kwijt en er is nog genoeg plek voor een werkplaats. De woning beschikt over 14 zonnepanelen dus de energiekosten zijn laag! 

ALGEMEEN:
Als je een ideale locatie zoekt dan heb je die bij deze woning zeker gevonden! Vanuit de woning loop je direct het park in waar je fijn kunt wandelen en met de kinderen naar diverse speeltuintjes en speelveldjes kunt gaan. Er liggen twee basisscholen op loopafstand en een middelbare school. Het centrum van Helden of Panningen ligt op slechts vijf minuutjes fietsen en hier vind je een uitgebreid assortiment aan winkels, supermarkten, restaurants en gezellige terrasjes. Bovendien ligt de oprit naar de A67 op nog geen 10 autominuten en van daaruit rij je makkelijk naar diverse grote steden. Naast de woning ligt een reststrook grond die wordt gehuurd van de gemeente voor €100 per jaar. Deze strook is echter ook te koop voor € 570,- k.k. 

BEGANE GROND:

ENTREE
Via de oprit loop je naar de voordeur van melkglas die uitkomt in de hal. In deze hal ligt een meterkast en een toiletruimte. Via een luik bij de voordeur heb je toegang tot de geïsoleerde kruipruimte.

WOONKAMER
De woonkamer is heerlijk ruim waardoor je meer dan genoeg plaats hebt voor een grote (hoek)bank in het zitgedeelte en een eettafel waar je met de hele familie aan kunt in het eetgedeelte. Het grote raam aan de voorkant biedt een geweldig uitzicht over het park: dat zal nooit gaan vervelen! De vloer is voorzien van een mooi laminaat en alle wanden zijn gestuct.

KEUKEN
Vanuit de woonkamer loop je zo de open keuken in. Deze is in 2010 volledig vernieuwd en ziet er keurig onderhouden uit. Je kunt hier koken op een vierpits inductiefornuis of je schuift een makkelijke maaltijd in de oven of stoomoven. Er is een extra grote koelkast beschikbaar voor alle verse spullen en in de vele keukenkastjes en -lades kun je al je keukengerei en provisie kwijt. Het aanrechtblad is van graniet net zoals de achterwand bij het fornuis. Via de keuken heb je toegang tot de tuin en een handige bijkeuken. In deze bijkeuken is genoeg plaats voor een vriezer of een extra koelkast en daarnaast vind je hier de witgoedaansluitingen. Een deur leidt naar de oprit waar je makkelijk twee auto’s op kunt parkeren.

VERDIEPING:
Via de trap in de hal kom je op de eerste verdieping. Doordat er een raam aanwezig is op de overloop is het hier al lekker licht.

SLAAPKAMERS
Twee van de drie slaapkamers zijn groot genoeg voor een tweepersoonsbed en beide hebben een grote raampartij met een draaikiepvenster. In de slaapkamer aan de voorkant van de woning staat een grote kledingkast met schuifdeuren die achter blijft. Hier kun je heel veel kleding in opbergen! De derde slaapkamer is iets kleiner maar zeker nog een fijne kinderkamer of werkplek. Ook hier is een raampartij met draaikiepvenster beschikbaar. Op alle slaapkamers ligt vloerbedekking.

BADKAMER
De badkamer is royaal van formaat, enigszins verouderd maar wel functioneel. Je kunt hier kiezen uit een ligbad of een douche en verder heb je de beschikking over een toilet en een wastafel. Naast mechanische afzuiging is ook hier een draaikiepraam aanwezig. De badkamer is neutraal uitgevoerd in lichte kleuren.

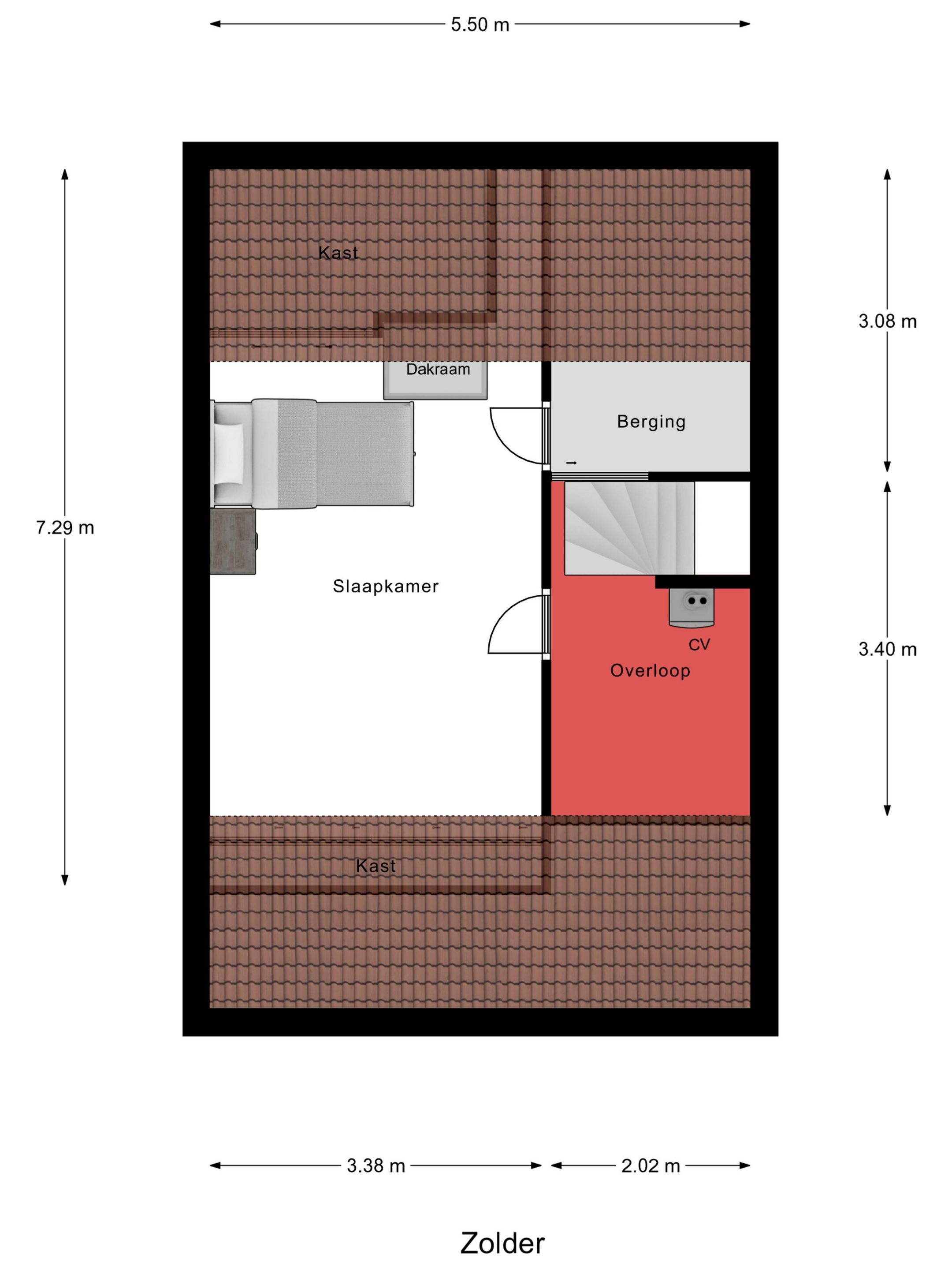
ZOLDER:
Een vaste trap geeft toegang tot de zolder. Hier ligt een vierde slaapkamer met een dakraam en onder de schuine wanden is handige bergruimte gemaakt met schuifdeuren. Op de overloop hangt de CV ketel (Nefit +/- 2012) en ook hier is nog extra bergruimte beschikbaar.

TUIN:
De achtertuin ligt op het zonnige zuiden en hier kun je dus vele uren heerlijk van de zon genieten! Direct achter de woning ligt een grote overkapping zodat je ook lekker in de schaduw kunt zitten. Deze overkapping is geheel af te sluiten met verandazeilen waardoor je hier in het voorjaar al snel kunt comfortabel kunt zitten. In de achtertuin staat een diversiteit aan grote planten waaronder enkele palmbomen, een oleander en riet dat langs de vijver groeit. De vijver is aangesloten op een pompsysteem, een filter en een ultraviolet lamp zodat er geen alg gaat groeien. De tuin is volledig bedekt met kiezels waardoor je er maar weinig onderhoud aan hebt en op deze manier kun je overal een extra zitplek of loungehoek kwijt. Achterin de tuin ligt een houten tuinhuis met een werkplaats en genoeg ruimte om fietsen in te stallen. In de tuin is verlichting aanwezig, diverse stopcontacten en een buitenkraan. Naast de woning ligt een vrije achterom. 

OVERIGE INFORMATIE:

AANVAARDING & VOORWAARDEN BIJ VERKOOP:
De aanvaarding geschiedt in onderling overleg.
Financieringsvoorbehoud : 5 weken
Bankgarantie of waarborgsom : vereist

ENERGIELABEL:
Verkoper beschikt over energielabel A

STAAT VAN ONDERHOUD:
De staat van onderhoud van de woning is prima. De woning is netjes bijgehouden en onderhouden waar nodig. De woning is 3 jaar geleden aan de buitenkant opnieuw in de verf gezet.

VERWARMING & ISOLATIE:
Verwarming geschiedt door middel van een Nefit CV ketel (ongeveer van 2012). Zowel het dak als de spouwmuren zijn vanuit de bouw geïsoleerd volgens de toen geldende norm. De kruipruimte is enkele jaren geleden nageïsoleerd. Alle ramen zijn voorzien van dubbel glas. De woning beschikt over 14 zonnepanelen die gehuurd zijn. De kosten hiervoor bedragen €74 per maand en lopen nog tot september 2026. Het contract kan ook in één keer worden afgekocht voor € 1795.

LIGGING:
De woning ligt helemaal achteraan in een doodlopende straat. Het enige verkeer dat hier dus komt ben je zelf of je bezoek. Met vrij uitzicht over het park en op loop- en fietsafstand van alle voorzieningen in Helden en Panningen is dit de ideale locatie.

NUTSVOORZIENINGEN:
De woning is rechtstreeks aangesloten op de openbare leidingen voor water, energie en riool en beschikt over een aansluiting op het kabelnetwerk.

LIJST ROERENDE ZAKEN & VRAGENLIJST WETTELIJKE INFORMATIEPLICHT:
De lijst van roerende zaken en de vragenlijst wettelijke informatieplicht verkoper(s) zijn te downloaden in de dataroom van de woning.

BOUWKUNDIG ADVIES:
Maison Makelaars adviseert om bij twijfel of bij oudere woningen een onafhankelijk bouwkundig onderzoek in te stellen.

MAATGEVING:
Alle maten en oppervlaktes in de brochure en van alle plattegronden zijn indicatief, hieraan kunnen geen rechten ontleend worden.

Hoewel alle informatie in deze brochure met de grootste zorg wordt samengesteld kunnen wij niet altijd voorkomen dat de informatie enigszins afwijkt van hetgeen dat je in of rond de woning ziet of hebt gezien. Dit geldt met name voor de brochuretekst, de plattegronden en de maatvoeringen. Hieraan kunnen dan ook geen rechten worden ontleend.
Lees de volledige omschrijving

Contact

Maison Makelaars Peel en Maas / Horst aan de Maas

Kenmerken

Algemeen

Aangeboden sinds
6+ maanden
Status
Verkocht
Aanvaarding
In overleg
Soort woonhuis
Eengezinswoning, eindwoning
Soort bouw
Bestaande bouw
Bouwjaar
1990
Soort dak
Pannen
Ligging
Aan rustige weg, in woonwijk

Oppervlakten en inhoud

Wonen
135 m²
Gebouwgebonden Buitenruimte
19 m²
Externe bergruimte
11 m²
Perceel
242 m²
Inhoud
479 m³

Indeling

Aantal kamers
5 kamers (4 slaapkamers)
Aantal badkamers
1 badkamer
Badkamervoorzieningen
Douche, ligbad, toilet, wastafel
Aantal woonlagen
3
Voorzieningen
Tv kabel, zonnecollectoren

Energie

Energielabel
A
Isolatie
Dakisolatie, dubbel glas, vloerisolatie
Verwarming
Cv ketel
Warm water
Cv ketel
Cv-ketel
Nefit (gas gestookt combiketel uit 2012, eigendom)

Kadastrale gegevens

Perceelnaam
Peel en Maas G 5933
Oppervlakte
242 m²
Eigendomssituatie
Volle eigendom

Buitenruimte

Tuin
Achtertuin
Ligging tuin
Zuidwest
Bekijk alle kenmerken

Overige media