Deze prachtige vrijstaande woning in een populaire nieuwbouwwijk in Maasbree is pas enkele jaren geleden gebouwd en beschikt over alle luxe en hoogwaardige afwerking die je maar kunt wensen! Met 27 zonnepanelen en een warmtepomp is de woning geheel energieneutraal wat natuurlijk maandelijks veel kosten scheelt. De woning is aan de achterkant flink uitgebouwd met een nog vrij in te richten ruimte zodat je hier ook levensloopbestendig kunt wonen of bijvoorbeeld een fijne werkplek of praktijkruimte kunt maken. Naast de woonkamer en open keuken vind je op de begane grond ook nog een prachtige tuinkamer met glazen panelen die je in de zomer helemaal open kunt schuiven. In de winter kun je hier ook heerlijk zitten bij de houtkachel! Op de eerste verdieping liggen drie grote slaapkamers, waarvan één met inloopkast, en een luxe badkamer met douche en ligbad. In de groene achtertuin heb je lekker veel privacy en deze is ook onderhoudsvriendelijk aangelegd met onder andere kunstgras en een druppelsysteem via een grondwaterpomp om de tuin mooi groen te houden.
ALGEMEEN:
In deze rustige en kindvriendelijke nieuwbouwwijk komt alleen bestemmingsverkeer. Kinderen kunnen dus met een gerust hart lekker buiten spelen in 1 van de vele speeltuintjes of speelveldjes. Het centrum van Maasbree ligt op nog geen kilometer afstand waardoor je hier makkelijk naartoe kunt lopen of fietsen. In het centrum vind je verschillende winkels, supermarkten, een basisschool en diverse restaurants en terrasjes. Maasbree is centraal gelegen en uitstekend bereikbaar vanuit alle richtingen doordat de provinciale weg N275 direct aansluit op de autowegen A73 en A67 naar de grotere steden. Met het openbaar vervoer ben je bovendien ook zo bij het treinstation in Venlo.
BEGANE GROND:
ENTREE
Als je bij deze woning aan komt rijden valt meteen de landelijke uitstraling op door de met hout beklede muren, de rode steen, dakkapellen en het donkere puntdak. Van binnen wordt deze landelijke stijl doorgetrokken in de deuren, ramen met roedes en houten vloeren gecombineerd met een strakke en stoere industriële inrichting. De voordeur ligt aan de zijkant van de woning. In de entree ligt de meterkast, een handige inbouwkast en om het hoekje bevinden zich de witgoedaansluitingen. In de entree liggen grote tegels van 120x60 cm waarvan er geen één er precies hetzelfde uitziet. De gehele begane grond is voorzien van vloerverwarming. Via de entree heb je toegang tot de hal die naar de keuken en woonkamer leidt en tot de multifunctionele ruimte. In de hal ligt een toiletruimte met wandtoilet, fonteintje en een klein raam. De trap die naar de verdieping leidt is bekleed met eikenvloerdelen. Onder de trap ligt een handige trapkast.
KEUKEN
Via een stalen schuifdeur met glas loop je naar de keuken. Deze keuken is helemaal in industriële stijl ingericht met donkere kastjes en lades, een betonstuc werkblad en kleine tegeltjes tegen de achterwand. De keuken kan deze donkere kleuren goed hebben want de grote raampartij en de erker zorgen er voor dat er lekker veel licht naar binnen komt. In deze keuken ontbreekt het je aan niets! Je kunt koken op het vijfpits inductiefornuis of in de grote oven met stoomfunctie. Er is een vaatwasser aanwezig, een grote koelkast en een quooker kokendwaterkraan. In de vele lades en kastjes kun je met gemak al je potten, pannen, voorraad en keukengerei opbergen. Bij de erker kun je een grote eettafel kwijt waar je met de hele familie aan kunt eten.
WOONKAMER
De woonkamer heeft een prachtige verlijmde eikenhoutenvloer van extra brede planken. Enkele wanden zijn in een betonlook geverfd om ook hier de industriële look door te trekken en de openslaande deuren naar de tuinkamer geven juist weer dat landelijke gevoel.
TUINKAMER
De tuinkamer voelt ook echt als het verlengde van de tuin! Door de glazen panelen, die je in de zomer helemaal aan de kant kunt schuiven, en de grote lichtstraat in het plafond haal je als het ware buiten naar binnen toe. In de winter zorgt de houtkachel er voor dat je hier ook aangenaam kunt zitten.
MULTIFUNCTIONELE RUIMTE
Via de entree heb je toegang tot een gang die naar de multifunctionele ruimte leidt. In deze gang is een bergruimte aanwezig voor de warmtepomp en in een tweede ruimte zijn al alle voorbereidingen gemaakt voor een tweede badkamer. Daarnaast is er nog een open ruimte waar je bijvoorbeeld nog een speelkamer zou kunnen maken of, zoals nu, een sportruimte. Deze ruimtes zijn voorzien van een solartube ten behoeve van natuurlijk licht.
De multifunctionele ruimte is zo goed als klaar. Je moet zelf nog een vloer leggen, gipswanden tegen de muren plaatsen en alles afwerken. Je kunt deze ruimte dus nog helemaal vrij indelen. Het was de bedoeling om hier een vierde slaapkamer te realiseren met openslaande deuren naar de tuin en een achterliggend kantoor met ook een eigen ingang naar de tuin maar het is nu aan jou wat je hier van wenst te maken!
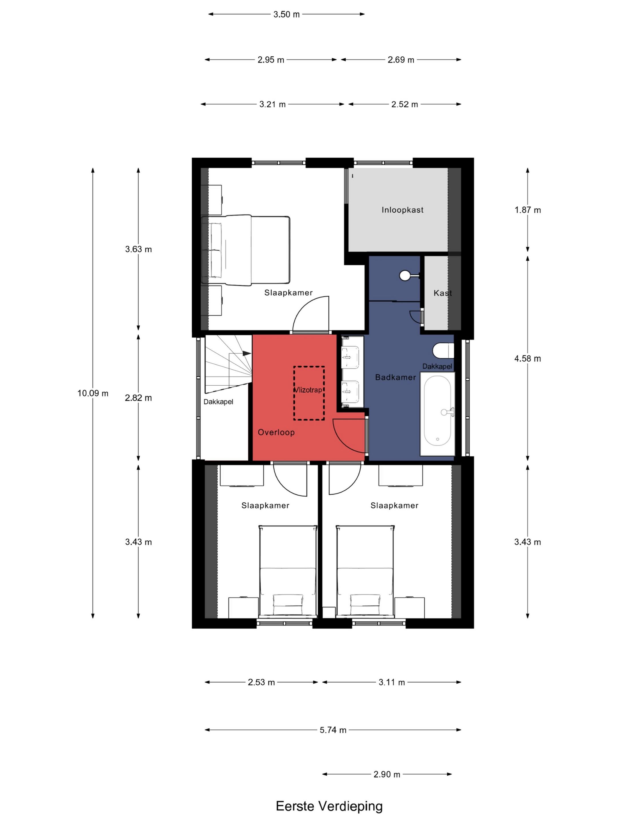
VERDIEPING:
Op de eerste verdieping liggen drie slaapkamers en een badkamer. Op de overloop is een dakkapel aanwezig met drie ramen en een elektrisch rolluik waardoor het hier ook altijd lekker licht is. Er hangt een airco-installatie die in de zomer de verdieping lekker koel houdt en in de winter kan verwarmen. Zowel op de overloop als de slaapkamers ligt een laminaatvloer van extra brede planken.
SLAAPKAMERS
Aan de voorkant van de woning bevinden zich twee slaapkamers met ieder een draaikiepraam met elektrisch te bedienen rolluik. De wanden zijn geverfd in rustige neutrale kleuren. De grote slaapkamer ligt aan de achterkant van de woning en ook deze kamer heeft twee draaikiepramen met elektrische rolluiken. Via een schuifdeur kom je in de grote inloopkast! Hier heb je meer dan genoeg ruimte om je kleding uit te stallen op de legplanken of de hangrekken.
BADKAMER
In deze royale badkamer kun je kiezen uit een heerlijk ligbad of lekker ontspannen in de ruime inloopdouche met glazen scherm. De badkamer heeft net als de keuken een industriële look gekregen door het robuuste wandmeubel met twee wasbakken en een betonstuc blad. Achter het bad zijn twee nissen gemaakt in betonstuc en ook rondom het bad komt dit weer terug. Er is verder een toilet aanwezig, een grote dakkapel met drie ramen met elektrisch rolluik en een handige muurkast. De vloer is voorzien van vloerverwarming en achter de spiegel zit elektrische verwarming.
ZOLDER:
De zolder is te bereiken met een vlizotrap via een luik boven de overloop en hier beschik je over veel ruimte om spullen op te bergen die je niet zo vaak nodig hebt. De wtw-installatie hangt ook op de zolder.
TUIN:
In deze achtertuin heb je geen last van inkijk! Doordat de woning op de hoek van de straat ligt was de inkijk al minimaal en achterin de tuin staan enkele leibomen die voor nog meer privacy zorgen. In de zomer schuif je de glazen panelen van de tuinkamer helemaal open zodat het gelijk fungeert als een overdekt terras. Zelfs als het nog wat fris is kun je hier al lekker bij de houtkachel zitten. De tuin is mooi groen aangelegd maar makkelijk te onderhouden vanwege het kunstgras, de siergrassen in de borders en een druppelsysteem dat aangesloten is op de grondwaterpomp en de tuin zo mooi groen houdt. Achterin de tuin ligt een grote berging die geheel geïsoleerd is en voorzien van elektra. De tuin heeft een vrije achterom aan de zijkant van de woning en is geheel omheind. Er zijn diverse stopcontacten aanwezig, verlichting en een buitenkraan.
OVERIGE INFORMATIE:
AANVAARDING & VOORWAARDEN BIJ VERKOOP:
De aanvaarding geschiedt in onderling overleg.
Financieringsvoorbehoud : 5 weken
Bankgarantie of waarborgsom : vereist
ENERGIELABEL:
Verkoper beschikt over energielabel A++
STAAT VAN ONDERHOUD:
De staat van onderhoud van de woning is uitstekend. De woning is pas zes jaar geleden gebouwd en dus nog relatief nieuw en altijd goed bijgehouden.
VERWARMING & ISOLATIE:
Verwarming geschiedt door middel van een warmtepomp (Hitachi 2018) en 27 zonnepanelen (jaaropbrengst 5500 kWh). Op de begane grond is vloerverwarming aanwezig en op de badkamer ook. Op de eerste verdieping hangt een airco die kan koelen en verwarmen. De woning is geheel geïsoleerd vanuit de bouw in 2018. De ramen op de begane grond bestaan uit triple glas en de ramen op de verdieping bevatten HR++ glas. Deze woning betreft een houtskeletbouw woning en is geheel met producten van Unilin gebouwd. Een dampwerende plaat durelis vapourblock binnenzijde, vuren regelwerk met rockwool isolatie en dampopen bouwplaat buiten. Dit zijn kwalitatief hoogwaardige en vochtregulerende producten voor hsb bouw, waardoor je een zeer fijn binnenklimaat hebt in combinatie met de vloerverwarming en de wtw ventilatie unit. Er wordt voorverwarmde en gefilterde lucht in elke vertrek ingeblazen en weer afgezogen.
LIGGING:
De woning ligt in een rustige en kindvriendelijke wijk op loop- en fietsafstand van alle voorzieningen in Maasbree.
NUTSVOORZIENINGEN:
De woning is rechtstreeks aangesloten op de openbare leidingen voor water, energie en riool en beschikt over een aansluiting op het kabel- en glasvezelnetwerk.
LIJST ROERENDE ZAKEN & VRAGENLIJST WETTELIJKE INFORMATIEPLICHT:
De lijst van roerende zaken en de vragenlijst wettelijke informatieplicht verkoper(s) zijn te downloaden in de dataroom van de woning.
BOUWKUNDIG ADVIES:
Maison Makelaars adviseert om bij twijfel of bij oudere woningen een onafhankelijk bouwkundig onderzoek in te stellen.
MAATGEVING:
Alle maten en oppervlaktes in de brochure en van alle plattegronden zijn indicatief, hieraan kunnen geen rechten ontleend worden.
Hoewel alle informatie in deze brochure met de grootste zorg wordt samengesteld kunnen wij niet altijd voorkomen dat de informatie enigszins afwijkt van hetgeen dat je in of rond de woning ziet of hebt gezien. Dit geldt met name voor de brochuretekst, de plattegronden en de maatvoeringen. Hieraan kunnen dan ook geen rechten worden ontleend.