ph@maisonmakelaars.nl 077 308 29 46
Open huis

Schuttersweide 11 Grubbenvorst

Vraagprijs € 599.000 k.k.
Open huis 28 maart 2026 van 11:00 tot 15:00

Omschrijving

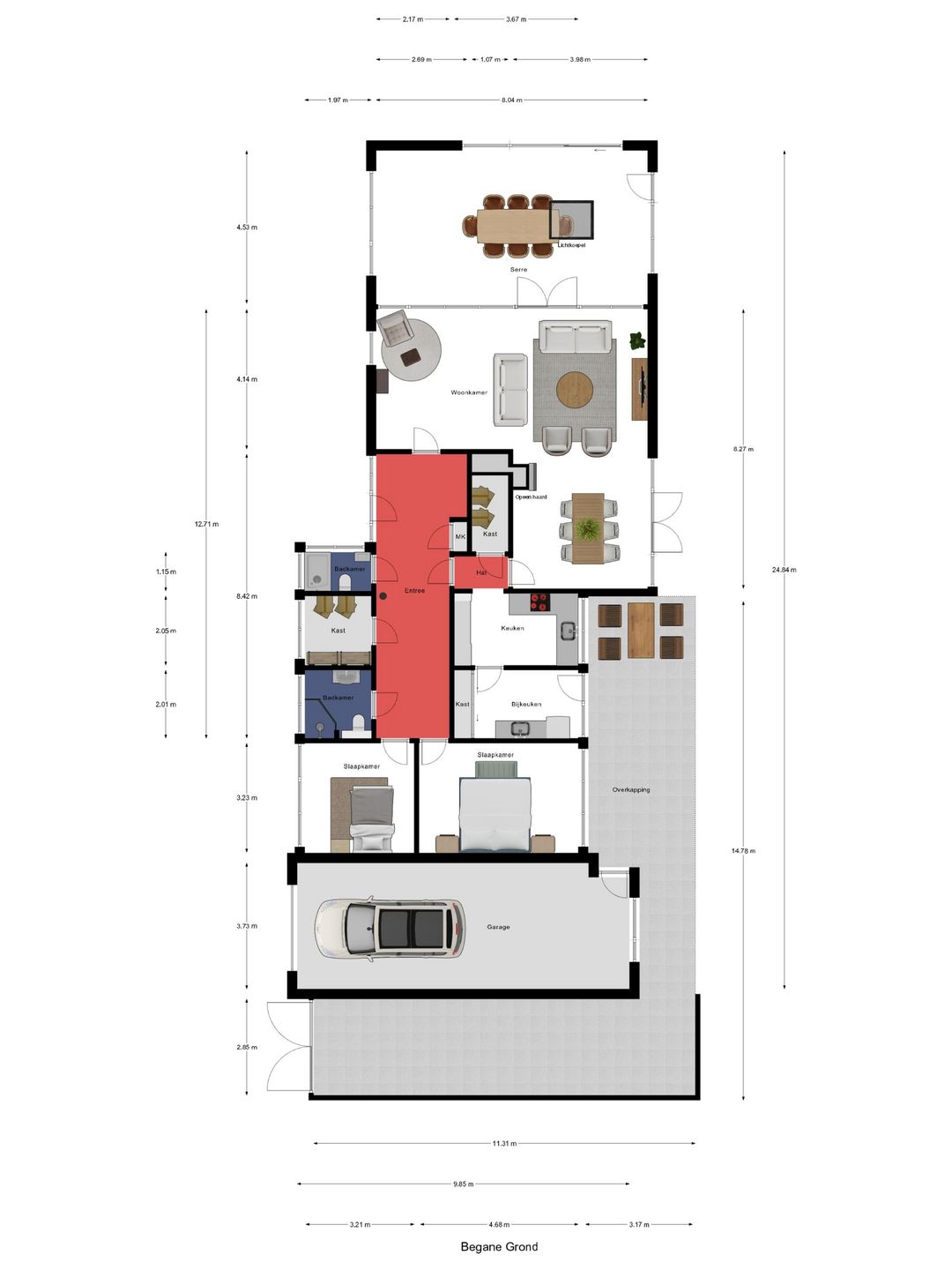
Aan een bijzonder rustige straat in het charmante Grubbenvorst ligt deze vrijstaande bungalow die in 2006 volledig is gerenoveerd. Tijdens deze renovatie zijn onder andere alle ramen en deuren vervangen door exemplaren met onderhoudsarme kunststof kozijnen. In 2019 is de woning bovendien uitgebreid met een royale aanbouw/tuinkamer, die veel licht en ruimte toevoegt aan het geheel. Deze aanbouw is voorbereid op de aanleg van een badkamer, waardoor hier eenvoudig een slaapkamer met ensuite badkamer gerealiseerd kan worden of een praktijkruimte. De bungalow biedt een verrassend ruime woonkamer met prettig uitzicht op de fraai aangelegde tuin, een compacte keuken met aansluitende bijkeuken en twee royale slaapkamers. Daarnaast is er nog een kleinere kamer die momenteel als berging wordt gebruikt, maar ook uitstekend dienst kan doen als derde slaapkamer of werkplek. De woning beschikt verder over een fijne badkamer én een separate toiletruimte met douche. De tuin rondom de woning is een groen paradijs met diverse terrassen, een groot overdekt zitgedeelte, een moestuin en een kas. Hier kun je op elk moment van de dag een fijn plekje in de zon of schaduw vinden. Voor de liefhebber van ruimte en gemak is er bovendien een grote carport waar zelfs een caravan of camper onder past én een garage die geschikt is voor een auto of als praktische werkplaats. Een extra pluspunt: het perceel bestaat uit twee kavels. De tweede kavel heeft een bouwbestemming, wat betekent dat hier ook een mantelzorgwoning gerealiseerd mag worden, een unieke kans voor wie zoekt naar flexibiliteit of extra woongemak in de toekomst.

ALGEMEEN:
Deze levensloopbestendige woning ligt op de hoek van een rustige straat in een zogeheten weide: een autoluwe woonstraat waar alleen bestemmingsverkeer komt. Een heerlijke plek dus met volop rust en privacy. Tegelijkertijd bevindt de woning zich op loopafstand van alle dagelijkse voorzieningen in Grubbenvorst zoals de supermarkt, basisschool, apotheek, gezellige restaurantjes en natuurlijk de Maas. Dankzij de gunstige ligging nabij de A73 ben je bovendien in enkele minuten in Venlo of zelfs over de grens in Duitsland. Een ideale combinatie van rustig wonen en toch alles dichtbij.

ENTREE
Via een keurig aangelegd pad door de ruime, fraai onderhouden voortuin bereik je de voordeur van deze uitnodigende bungalow. Binnenkomend in de royale ontvangsthal valt direct de aangename sfeer en overzichtelijke indeling op. Vanuit deze centrale hal heb je toegang tot alle ruimtes in de woning. Bovendien woon je hier met een veilig gevoel: de woning is uitgerust met een inbraakalarm en maar liefst zes beveiligingscamera’s die rondom het huis zijn geplaatst.

WOONKAMER EN TUINKAMER
Aan de linkerzijde van de hal bevindt zich de riante woonkamer. De mooie laminaatvloer geeft de ruimte een warme uitstraling terwijl de gashaard en de airco (met koel- en verwarmingsfunctie) zorgen voor een prettig binnenklimaat in elk seizoen. Via de openslaande deuren kom je in de lichte tuinkamer die in 2019 is aangebouwd. Dankzij de grote raampartijen en de schuifpui geniet je hier van een prachtig uitzicht over de tuin en een directe verbinding met het buitenleven. Handig detail: in deze ruimte zijn al aansluitingen voor water, afvoer en een toilet voorbereid, waardoor het eenvoudig is om hier een slaapkamer met ensuite badkamer te realiseren. Het voorraam is bovendien zó ontworpen dat het vervangen kan worden door een deur, ideaal als je een praktijkruimte of bijvoorbeeld een kapsalon aan huis wilt creëren.

KEUKEN
De keuken is afgesloten van de woonkamer en praktisch ingericht, met alles binnen handbereik. Je kookt op een vierpits keramische kookplaat en gebruikt de oven voor het bereiden van maaltijden, terwijl de vaatwasser zorgt voor het gemak na het eten. In de ruime kastenwand vind je volop bergruimte en een geïntegreerde koelkast. Aansluitend ligt de bijkeuken, voorzien van een extra keukenblok met wasbak, een royale inbouwkast met schuifdeuren en genoeg plek voor een extra koelkast of vriezer. Zowel in de keuken als in de bijkeuken ligt een donkere tegelvloer, die niet alleen stijlvol oogt maar ook onderhoudsvriendelijk is.

SLAAPKAMERS
Op de begane grond bevinden zich ook twee zeer ruime slaapkamers, beide met voldoende plaats voor een groot tweepersoonsbed en een royale kledingkast. De kamers zijn voorzien van een laminaatvloer die zorgt voor een warme uitstraling en praktisch onderhoudsgemak. Dankzij de grote raampartijen met draaikiepvensters genieten de ruimtes van veel natuurlijk licht en goede ventilatiemogelijkheden. Daarnaast is er nog een derde, kleinere kamer aanwezig die momenteel in gebruik is als berging, maar zich ook uitstekend leent als extra slaapkamer, logeerkamer of werkplek aan huis.

BADKAMER EN TOILET
De badkamer is gelegen aan de voorzijde van de woning en verzorgd ingericht. Hier vind je een inloopdouche met glazen deuren, een wandtoilet en een wastafelmeubel met veel bergruimte en een spiegelkast met verlichting. De neutrale kleurstelling zorgt ervoor dat de badkamer past binnen iedere woonstijl. Extra praktisch is het separate toilet in de woning, dat zelfs over een extra douche beschikt. In zowel de badkamer als het toilet zijn hoge ramen met ontluchting aanwezig, zodat er voldoende daglicht en frisse lucht binnenkomt zonder dat er inkijk is.

TECHNISCHE RUIMTE
Tot slot is er nog een technische ruimte, waar de Brink cv-ketel hangt. Deze ketel is in 2023 intern volledig vernieuwd. In deze ruimte bevindt zich ook een grote boiler voor het warme water en de aansluiting van de zonnepanelen. Er liggen maar liefst 44 zonnepanelen op het dak, verdeeld over drie omvormers die afzonderlijk uitgeschakeld kunnen worden. Vanuit deze ruimte is bovendien toegang tot de kruipruimte onder de woning, handig voor onderhoud en inspectie.

GARAGE EN CARPORT:
Direct aan de woning bevinden zich een garage en een carport, die zowel via de tuin als vanaf de voorkant van het perceel bereikbaar zijn. De garage is voorzien van een elektrisch bedienbare sectionaalpoort, waardoor je eenvoudig met de auto naar binnen kunt rijden. Binnen is er niet alleen voldoende ruimte om een auto te parkeren, maar ook nog plaats over voor een werkbank. Daarnaast vind je hier de aansluitingen voor witgoedapparatuur waardoor de garage ook praktisch dienstdoet als wasruimte.
Aansluitend ligt de carport, die met een lengte van maar liefst tien meter bijzonder ruim is opgezet. Aan de voorzijde is deze afgesloten met een dubbele poort zodat alles veilig uit het zicht geparkeerd staat. De carport is bovendien extra hoog uitgevoerd waardoor er met gemak een camper, caravan of hoge bestelbus onder past. Dankzij deze combinatie van garage en carport biedt de woning volop ruimte en mogelijkheden voor auto’s, klussen, opslag of het stallen van grotere voertuigen.

TUIN:
De tuin rondom de woning is een heerlijke plek om te genieten van rust, groen en buitenleven. Dankzij de diverse terrassen zijn er volop mogelijkheden om op elk moment van de dag een fijn zitje te creëren, in de zon of juist in de schaduw. Direct achter de woning ligt het grote overdekte terras, voorzien van twee lichtstraten in het plafond waardoor er altijd een prettige hoeveelheid daglicht aanwezig is. Aan de zijde van de tuinkamer bevindt zich een tweede terras met een uitklapbaar zonnescherm, zodat je ook hier kunt kiezen tussen zon en schaduw. De rest van de tuin is een fraaie mix van gazon, vaste beplanting en een moestuin, wat zorgt voor een levendige en natuurlijke uitstraling. Voor de liefhebber van eigen kweek is er bovendien een kleine kas aanwezig, perfect om groenten of kruiden te verbouwen. Het onderhoud van de tuin is extra comfortabel dankzij de beregeningsinstallatie die in 2023 is aangelegd en is aangesloten op een grondwaterpomp met dompelpomp en dus zowel efficiënt als milieuvriendelijk. Het perceel bestaat uit twee kavels, waarbij de tweede kavel ook een bouwbestemming heeft. Dit biedt de mogelijkheid om hier een mantelzorgwoning te realiseren: een bijzonder waardevolle optie voor wie zoekt naar extra woonruimte, flexibiliteit of toekomstbestendige woongemakken. Een tuin die dus niet alleen prachtig is om te zien, maar ook volop mogelijkheden biedt voor nu en later.

OVERIGE INFORMATIE:
AANVAARDING & VOORWAARDEN BIJ VERKOOP:
De aanvaarding geschiedt in onderling overleg.
Financieringsvoorbehoud : 5 weken
Bankgarantie of waarborgsom : vereist

ENERGIELABEL:
Verkoper beschikt over energielabel B.

STAAT VAN ONDERHOUD:
De staat van onderhoud van de woning is goed. De woning is altijd keurig bijgehouden en onderhouden waar nodig.

VERWARMING & ISOLATIE:
Verwarming geschiedt door middel van een Brink CV-ketel waarvan in 2023 de inhoud is vernieuwd. Daarnaast zijn er 3 airco’s aanwezig die zowel kunnen koelen als verwarmen en in de woonkamer bevindt zich een gashaard. Voor het warme water is er een boiler aanwezig. Zowel de muren als het dak zijn voorzien van isolatie, het dak is bovendien in 2006 volledig vernieuwd.

LIGGING:
De woning ligt aan een rustige straat waar alleen bestemmingsverkeer doorheen komt en op loopafstand van alle voorzieningen in het dorp.

NUTSVOORZIENINGEN:
De woning is rechtstreeks aangesloten op de openbare leidingen voor water, energie en riool en beschikt over een aansluiting op het kabel- en glasvezelnetwerk.

LIJST ROERENDE ZAKEN & VRAGENLIJST WETTELIJKE INFORMATIEPLICHT:
De lijst van roerende zaken en de vragenlijst wettelijke informatieplicht verkoper(s) zijn te downloaden in de dataroom van de woning.

BOUWKUNDIG ADVIES:
Maison Makelaars adviseert om bij twijfel of bij oudere woningen een onafhankelijk bouwkundig onderzoek in te stellen.
Lees de volledige omschrijving

Contact

Maison Makelaars Peel en Maas / Horst aan de Maas

Kenmerken

Algemeen

vraagprijs
€ 599.000 kosten koper
Aangeboden sinds
4 november 2025
Status
Beschikbaar
Aanvaarding
In overleg
Soort woonhuis
Bungalow, vrijstaande woning
Soort bouw
Bestaande bouw
Bouwjaar
1972
Ligging
Aan rustige weg

Oppervlakten en inhoud

Wonen
171 m²
Overige inpandige ruimte
36 m²
Gebouwgebonden Buitenruimte
64 m²
Perceel
1.031 m²
Inhoud
813 m³

Indeling

Aantal kamers
3 kamers (2 slaapkamers)
Aantal badkamers
1 badkamer
Badkamervoorzieningen
Douche, toilet, wastafel
Aantal woonlagen
1
Voorzieningen
Airconditioning, glasvezel kabel, zonnecollectoren

Energie

Energielabel
B
Isolatie
Dakisolatie, muurisolatie
Verwarming
Airconditioning, cv ketel, gashaard
Warm water
Elektrischeboiler eigendom
Cv-ketel
Brink air for life (gas gestookt combiketel uit 2022, eigendom)

Kadastrale gegevens

Perceelnaam
Horst aan de Maas C 7055
Oppervlakte
320 m²
Eigendomssituatie
Volle eigendom
Perceelnaam
Horst aan de Maas C 7056
Oppervlakte
711 m²
Eigendomssituatie
Volle eigendom

Buitenruimte

Tuin
Zijtuin
Zijtuin
368 m²
Ligging tuin
Zuid

Garage

Capaciteit
1 auto
Voorzieningen
Metelektrischedeur, voorzien van elektra, voorzien van water
Bekijk alle kenmerken

Overige media