gm@maisonmakelaars.nl 0314 39 26 84
Verkocht

Rozengaardseweg 36 05 Doetinchem

Omschrijving

Dit fraaie en compacte levensloopbestendige appartement in het centrum van Doetinchem is vanwege de directe nabijheid van veel voorzieningen een ideale woonplek voor senioren en voor wie van de uitgaansmogelijkheden en de gemakken van de stad houdt. Het appartement in het markante ronde woongebouw ‘Het Bastion’, dat in 2000 is gebouwd, heeft 3 kamers, waarvan 2 slaapkamers, een inpandige berging en een eigen parkeerplaats in het souterrain: hoe fijn is dit!

ALGEMEEN: OVER DOETINCHEM
De levendige stad Doetinchem ligt aan de Oude IJssel en wordt ook wel ‘de hoofdstad van de Achterhoek’ genoemd. De gemeente telt circa 59.000 inwoners. In de binnenstad is veel te zien, te doen en te beleven dankzij de bijzondere speciaalzaken, de gevarieerde uitgaansmogelijkheden en het enorme horeca-aanbod. Naast streekgerechten kun je hier ook alle mogelijke wereldse smaken proeven. Op de Oude IJssel ligt een voormalig, omgebouwd vrachtschip met een heuse biergarten en een eigen stadsstrandje: een bijzondere plek met zicht op de stad. In Doetinchem is wekelijks de grootste markt van de regio, waar je heerlijk kunt rondstruinen. Deze markt staat bekend als het walhalla voor liefhebbers van stoffen, die hier te kust en te keur worden aangeboden.
In Doetinchem kun je volop genieten van kunst en cultuur en het hele jaar door worden hier mooie evenementen georganiseerd. En als je even genoeg hebt van de reuring in de stad, dan ga je lekker fietsen of wandelen in het idyllische, groene ommeland, waar nog veel moois te ontdekken valt.

Het appartement dat wij aanbieden is gelegen in het centrum van de stad, met alle voorzieningen binnen handbereik. Winkels, supermarkten, (basis)scholen, sportschool, ziekenhuis en openbaar vervoer zijn ‘om de hoek’ en de A12 en de A18 zijn binnen korte tijd bereikbaar.

Deze woning wordt aangeboden met een bieden-vanaf-prijs.

ENTREE
Zodra we in de buurt komen, kunnen we het markante, ronde woongebouw met de naam ‘Het Bastion’ haast niet missen.
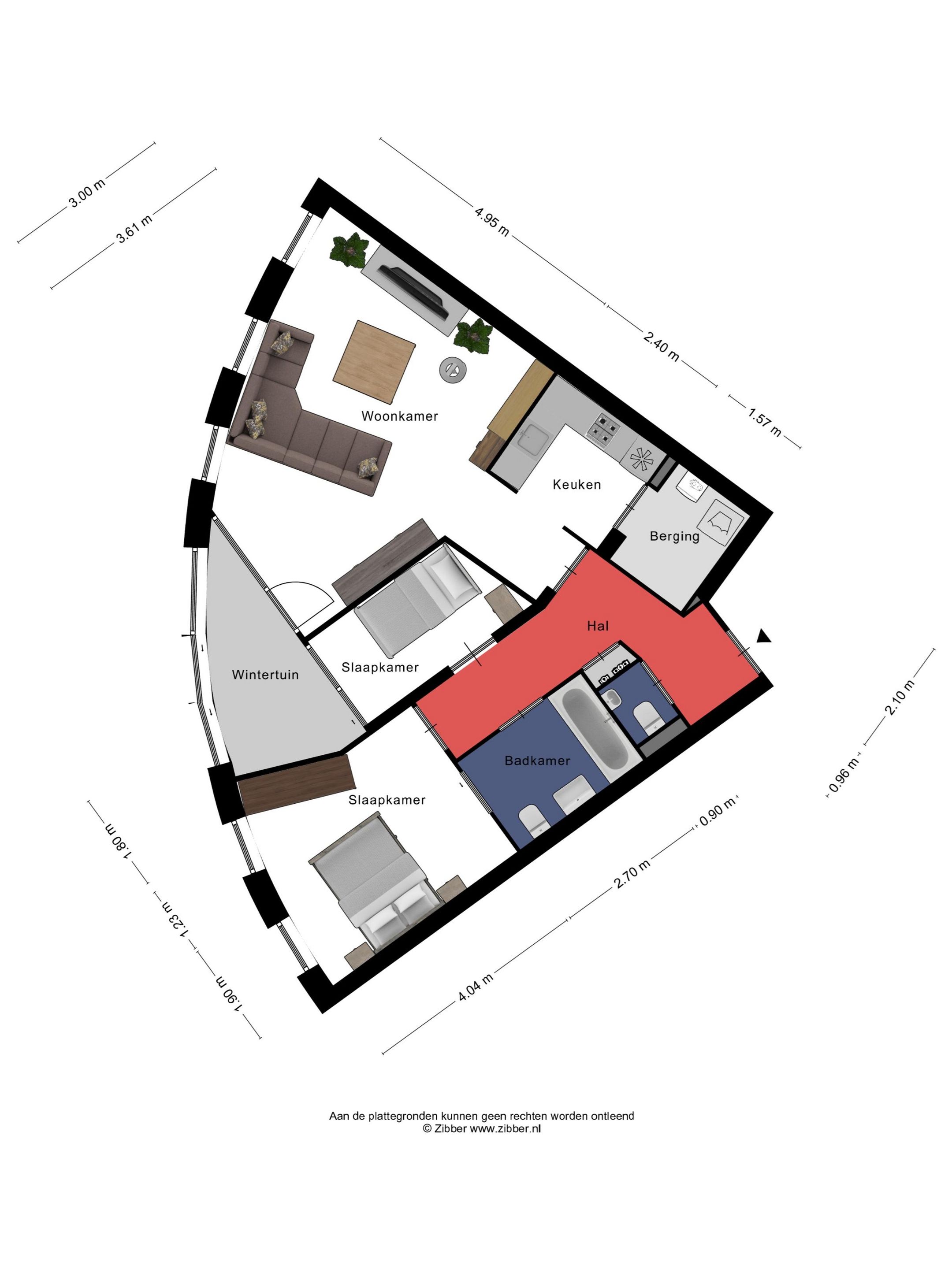
Via de uitnodigende centrale entree en het fraaie trappenhuis met veel daglicht en gezellige zitjes om even uit te rusten of een praatje met elkaar te maken, gaan we met de lift naar boven om dit verrassende appartement, dat de vorm heeft van een taartpunt, te bekijken.
In de hal met garderobe proeven we direct de luxe sfeer van dit appartement. De fraaie PVC vloer met houten visgraatmotief loopt door over de hele verdieping en verbindt alle ruimtes optisch met elkaar.

TOILET
De toiletruimte met wandcloset en fonteintje is toegankelijk
via de hal.

WOONKAMER
We zijn blij verrast bij binnenkomst in de smaakvol ingerichte woonkamer met sfeervolle details, die een speelse indeling heeft door de ronde vorm van het gebouw.
Deze fijne, lichte ruimte met een zitgedeelte, een eethoek en de halfopen keuken heeft aan de ronde zijde met ramen nog een aparte tuinkamer / wintertuin, een heerlijke lounge-plek waar je ongestoord kunt zitten met de krant en een drankje, terwijl er in de keuken lekker voor je wordt gekookt. De grote raampartij met deur zorgt voor verbinding met de woonkamer en maakt de ruimte mooi transparant. De andere raampartij zorgt voor een doorkijkje naar de achterliggende slaap- of logeerkamer. En ben je de kookgeluiden in de keuken even beu, dan doe je gewoon de deur dicht.

KEUKEN / BIJKEUKEN
De half open keuken heeft een L-vormig, kunststof werkblad met granito-print en is voorzien van allerhande apparatuur, waaronder een gasfornuis, een 4-pits kookplaat met afzuigkap en een koelkast. Via de keuken kom je in de betegelde bijkeuken met extra bergruimte en een witgoedaansluiting.

We lopen terug naar de hal, om een kijkje te nemen in de slaapkamers en de badkamer.

SLAAPKAMER 1, DE HOOFDSLAAPKAMER
Deze gezellige slaapkamer met twee ramen bevindt zich naast de tuinkamer / wintertuin aan de voorzijde van het appartement. Deze kamer heeft een TV-aansluiting.

SLAAPKAMER 2
Deze extra slaap-, logeer-, of werkkamer in het hart van het appartement grenst middels een glazen pui met openslaand raam aan de tuinkamer / wintertuin.

BADKAMER
De badkamer met glazen douchecabine, ligbad, enkele wastafel met meubel en spiegel en een extra wandcloset heeft een strakke, luxe uitstraling. Hier is mechanische ventilatie.

EN VERDER
Het goed geïsoleerde appartement heeft houten kozijnen, voorzien van dubbel glas.

PARKEREN
Je beschikt over een eigen parkeerplaats in het souterrain.

In dit fraaie, centraal gelegen appartement wil je graag wonen als je van de stad houdt.
Lees de volledige omschrijving

Contact

Maison Makelaars Graafschap Midden

Kenmerken

Algemeen

Aangeboden sinds
6+ maanden
Status
Verkocht
Aanvaarding
In overleg
Soort woonhuis
Appartement, portiekflat
Soort bouw
Bestaande bouw
Bouwjaar
2000
Soort dak
Bitumineuze dakbedekking
Ligging
In centrum

Oppervlakten en inhoud

Wonen
84 m²
Externe bergruimte
6 m²
Inhoud
255 m³

Indeling

Aantal kamers
3 kamers (2 slaapkamers)
Aantal badkamers
1 badkamer
Badkamervoorzieningen
Douche, ligbad, wastafel
Aantal woonlagen
1
Voorzieningen
Mechanische ventilatie

Energie

Energielabel
B
Isolatie
Dubbel glas, vloerisolatie
Verwarming
Cv ketel
Warm water
Cv ketel
Cv-ketel
Nefit (gas gestookt combiketel uit 2017, eigendom)

Kadastrale gegevens

Perceelnaam
Doetinchem A 4462
Eigendomssituatie
Volle eigendom
Bekijk alle kenmerken

Overige media