ph@maisonmakelaars.nl 077 308 29 46
Verkocht

Peperstraat 1 C Sevenum

Omschrijving

Wonen in het centrum van Sevenum? Dit verrassend ruime appartement biedt alles wat je nodig hebt! Gelegen op een centrale locatie, combineert deze woning comfort met een slimme indeling en een gezellige buitenruimte.
Via de eigen entree bereik je de eerste verdieping, waar zich de keuken bevindt. Op de tweede verdieping vind je de woonkamer, die dankzij de ligging op de bovenste woonlaag een fijn uitzicht en veel privacy biedt. Verder zijn er twee ruime slaapkamers, een nette badkamer en een apart toilet. De slaapkamers zijn ideaal als master bedroom en logeer- of werkkamer, en de badkamer is voorzien van de basis die je nodig hebt. Een van de grote pluspunten is het gezellige dakterras. Deze buitenruimte is afgewerkt met een houten vlondervloer en biedt een fijne plek om van de zon te genieten en lekker te ontspannen.
Voor wie behoefte heeft aan extra bergruimte is er de mogelijkheid om een vlizotrap naar de zolder te maken. De zolder is nog niet begaanbaar, maar met het aftimmeren van de vloer maak je hier eenvoudig een praktische opbergruimte van. Op de begane grond heb je bovendien ook nog de beschikking over een eigen berging.

ALGEMEEN:
Wonen in een bovenwoning midden in het centrum van Sevenum betekent wonen in een levendige dorpskern met alles binnen handbereik. Of je nu houdt van gezelligheid, gemak of een goede bereikbaarheid: deze locatie heeft het allemaal. In het centrum van Sevenum vind je een ruim aanbod aan winkels, supermarkten, boetieks en horecagelegenheden. Van een snelle boodschap tot een lunch op het terras of een avondje uit eten: je loopt er zó naartoe. Er worden regelmatig evenementen georganiseerd op het Raadhuisplein, zoals markten, braderieën en muziekoptredens. Alles draagt bij aan de levendige sfeer waar dit dorp om bekendstaat. Naast winkels en horeca zijn ook andere voorzieningen dichtbij. Denk aan een huisarts, apotheek, scholen, sportverenigingen en een bibliotheek – allemaal op loop- of fietsafstand. Het maakt Sevenum tot een fijne plek om te wonen, voor jong én oud.
Ook qua bereikbaarheid zit je hier goed. Station Sevenum-Horst ligt op korte afstand en biedt rechtstreekse treinverbindingen naar onder andere Venlo en Eindhoven. Met de auto ben je binnen enkele minuten op de A67 of A73, waardoor steden als Venlo, Venray en zelfs Düsseldorf vlot bereikbaar zijn.

EERSTE VERDIEPING:

ENTREE
Via een stalen trap en een loopbrug over het dak bereik je de voordeur van dit appartement.

KEUKEN
Je komt direct binnen in de keuken, die ondanks zijn eenvoud zeer functioneel is ingericht. De ruimte is praktisch opgezet en biedt alles wat je nodig hebt om lekker te koken. Er is een vierpits inductiefornuis, een vaatwasser en voldoende werk- en opbergruimte dankzij de vele keukenkastjes. Voor al je keukenspullen en voorraad is er dus meer dan genoeg plek. De keuken is ruim genoeg voor het plaatsen van een losse koelkast én een eettafel, waardoor je hier niet alleen kookt, maar ook gezellig kunt tafelen. Daarnaast is er een handige muurkast aanwezig, ideaal voor het opbergen van proviand, schoonmaakspullen of andere benodigdheden. Dankzij de kunststof kozijnen met draaikiepramen en een kunststof deur met raam, komt er prettig veel daglicht binnen. Bovendien is er een rolluik aanwezig, zodat je eenvoudig de lichtinval en privacy kunt regelen.

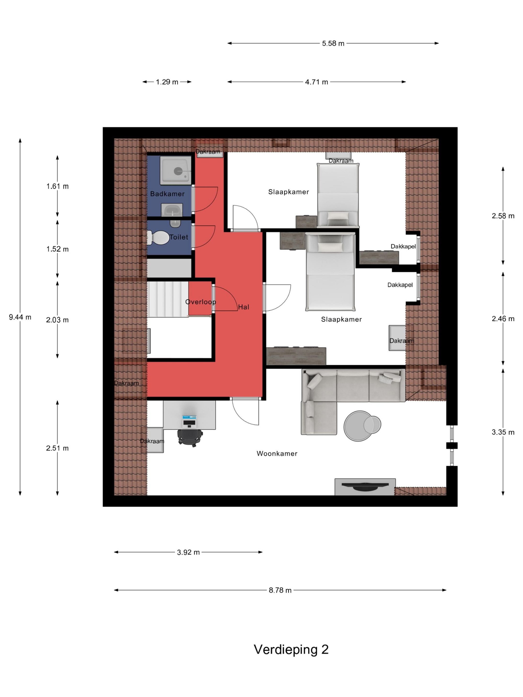
TWEEDE VERDIEPING:
Via de trap in de hal bereik je de tweede verdieping. Onderaan de trap bevindt zich de Nefit CV-ketel uit 2024, keurig weggewerkt in een praktische muurkast, netjes én onderhoudsvriendelijk.

WOONKAMER
Aan de rechterkant kom je in de ruime woonkamer, die zich uitstrekt over de volledige lengte van het appartement. Dankzij twee draaikiepramen aan de voorzijde en een groot Velux dakraam aan de achterzijde valt er royaal daglicht naar binnen. De nette laminaatvloer loopt door over de hele verdieping, wat zorgt voor een rustige en verzorgde uitstraling.

SLAAPKAMERS
Verder vind je op deze verdieping twee royale slaapkamers, beide verrassend ruim. Je hebt hier meer dan genoeg plek voor een tweepersoonsbed, een grote kledingkast of een thuiswerkplek. Beide kamers zijn voorzien van een dakkapel met draaikiepraam én een extra Velux dakraam, licht en frisse lucht zijn dus gegarandeerd.

BADKAMER
De badkamer en het separate toilet zijn weliswaar iets verouderd, maar nog altijd functioneel. In de badkamer beschik je over een douche met glazen wand en een wastafel. Het toilet is een staand model en voorzien van een fonteintje. Beide ruimtes zijn afgewerkt met een vochtbestendige wandbekleding in houtlook.

ZOLDER:
Voor wie behoefte heeft aan extra bergruimte is er de mogelijkheid om een vlizotrap naar de zolder te maken. Het luik is al aanwezig boven de overloop. De zolder is nog niet begaanbaar, maar met het aftimmeren van de vloer maak je hier eenvoudig een praktische opbergruimte van.

DAKTERRAS:
Een van de absolute pluspunten van dit appartement is het fraaie dakterras, een heerlijke plek om tot rust te komen of juist gezellig te genieten. De vloer is afgewerkt met een mooie houten vlonder, wat het terras een warme en verzorgde uitstraling geeft. Dankzij de ligging op het zuidoosten profiteer je hier van volop ochtend- en middagzon, perfect voor een ontspannen ontbijt in de zon of een goed boek in je loungestoel. Wat dit dakterras extra bijzonder maakt, is de privacy. Doordat de omliggende appartementen geen eigen dakterras hebben, zit je hier heerlijk beschut en zonder inkijk. Een fijne buitenruimte waar je echt even kunt ontsnappen aan de drukte van alledag, midden in het centrum, maar toch helemaal voor jezelf.

OVERIGE INFORMATIE:
AANVAARDING & VOORWAARDEN BIJ VERKOOP:
De aanvaarding geschiedt in onderling overleg.
Financieringsvoorbehoud : 5 weken
Bankgarantie of waarborgsom : vereist

ENERGIELABEL:
Verkoper beschikt over energielabel C.

STAAT VAN ONDERHOUD:
De staat van onderhoud van de woning is goed. De woning zou wel gemoderniseerd mogen worden (badkamer en keuken).

VERWARMING & ISOLATIE:
Verwarming geschiedt door middel van een Nefit CV ketel uit 2024. De woning grotendeels voorzien van kunststof kozijnen met HR++ glas. Zowel het dak als de spouwmuren zijn in 2004 nageïsoleerd met glaswol.

LIGGING:
De woning ligt in het centrum van Sevenum met alle voorzieningen op loopafstand.

NUTSVOORZIENINGEN:
De woning is rechtstreeks aangesloten op de openbare leidingen voor water, energie en riool en beschikt over een aansluiting op het kabel- en glasvezelnetwerk.

LIJST ROERENDE ZAKEN & VRAGENLIJST WETTELIJKE INFORMATIEPLICHT:
De lijst van roerende zaken en de vragenlijst wettelijke informatieplicht verkoper(s) zijn te downloaden in de dataroom van de woning.

BOUWKUNDIG ADVIES:
Maison Makelaars adviseert om bij twijfel of bij oudere woningen een onafhankelijk bouwkundig onderzoek in te stellen.

MAATGEVING:
Alle maten en oppervlaktes in de brochure en van alle plattegronden zijn indicatief, hieraan kunnen geen rechten ontleend worden.

Hoewel alle informatie in deze brochure met de grootste zorg wordt samengesteld kunnen wij niet altijd voorkomen dat de informatie enigszins afwijkt van hetgeen dat je in of rond de woning ziet of hebt gezien. Dit geldt met name voor de brochuretekst, de plattegronden en de maatvoeringen. Hieraan kunnen dan ook geen rechten worden ontleend.
Lees de volledige omschrijving

Contact

Maison Makelaars Peel en Maas / Horst aan de Maas

Kenmerken

Algemeen

Aangeboden sinds
16 juni 2025
Status
Verkocht
Aanvaarding
In overleg
Soort woonhuis
Appartement, bovenwoning
Soort bouw
Bestaande bouw
Bouwjaar
1905
Soort dak
Pannen
Ligging
In centrum

Oppervlakten en inhoud

Wonen
80 m²
Externe bergruimte
5 m²
Perceel
695 m²
Inhoud
272 m³

Indeling

Aantal kamers
4 kamers (2 slaapkamers)
Aantal badkamers
1 badkamer
Badkamervoorzieningen
Douche, wastafel
Aantal woonlagen
2
Voorzieningen
Dakraam, rolluiken

Energie

Energielabel
C
Isolatie
Dakisolatie, dubbel glas, muurisolatie
Verwarming
Cv ketel
Warm water
Cv ketel, elektrischeboiler eigendom
Cv-ketel
Nefit (gas gestookt combiketel uit 2024, eigendom)

Kadastrale gegevens

Perceelnaam
Horst aan de Maas L 341
Oppervlakte
695 m²
Eigendomssituatie
Volle eigendom
Bekijk alle kenmerken

Overige media