gm@maisonmakelaars.nl 0314 39 26 84

Oeverwal 1 Silvolde

Vraagprijs € 398.000 k.k.

Omschrijving

Stijlvol wonen met een vleugje luxe. Deze moderne hoekwoning uit 2023 combineert hoogwaardige afwerking met duurzaam comfort. Met haar strakke architectuur, overdekte veranda, luxe interieur én duurzame voorzieningen biedt deze woning alles wat u zoekt. Dankzij de warmtepomp, het energielabel A++++ en de zes zonnepanelen woont u hier nagenoeg energieneutraal. Welkom in Rivierduinen!

IN HET KORT
• Moderne hoekwoning uit 2023
• Woonoppervlakte van 90 m²
• Twee ruime slaapkamers
• Luxe keuken met natuurstenen werkblad
• Overdekte veranda met directe tuintoegang
• Energielabel A++++ met 6 zonnepanelen
• Vloerverwarming en warmteterugwininstallatie

ALGEMEEN
Rivierduinen is meer dan een woonwijk. Het is een leefgemeenschap waar duurzaamheid en sociale verbinding hand in hand gaan. Deze unieke wijk, volledig opgeleverd in 2023, kenmerkt zich door duurzame woningen, gemeenschappelijke (groen)voorzieningen en architectuur waarbij natuur en modern wonen hand in hand gaan. De verschillende commissies zorgen voor het onderhoud van de gezamenlijke tuin, de moestuin en de kas. In HAL 11, de gemeenschappelijke ruimte, komen buurtbewoners samen voor activiteiten en ontmoetingen.

Silvolde zelf biedt een prettige woonomgeving met alle benodigde voorzieningen binnen handbereik. Het dorpscentrum met winkels, restaurants en cafés ligt op korte afstand. Voor de natuurliefhebber liggen uitgestrekte wandel- en fietsroutes door het Achterhoekse landschap voor de deur. Doetinchem met haar uitgebreide winkelaanbod en culturele voorzieningen bereikt u binnen 15 minuten, terwijl steden als Arnhem en Enschede ook goed bereikbaar zijn via de uitvalswegen.

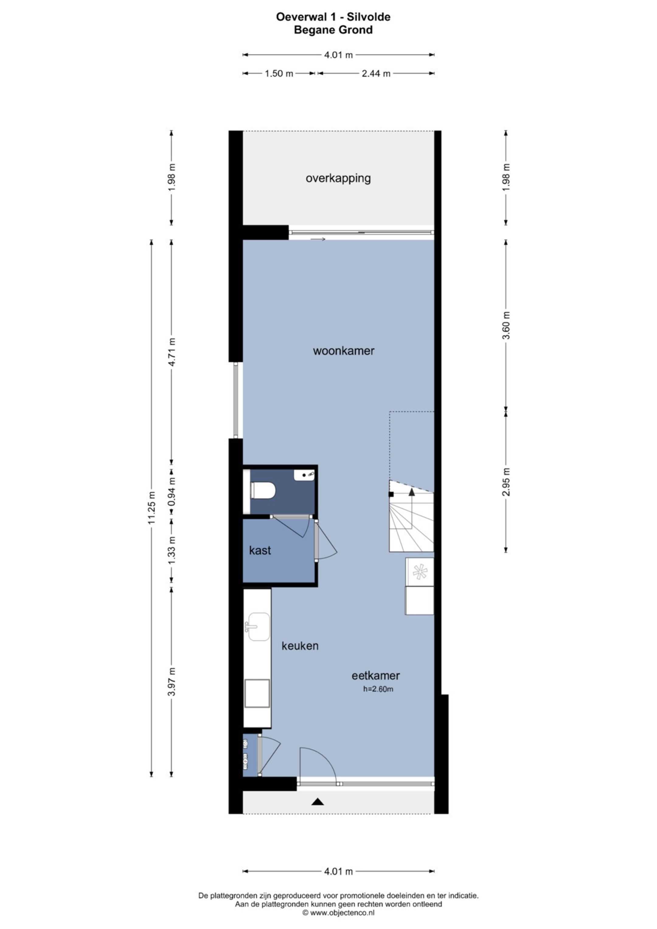
BEGANE GROND
ENTREE
Bij binnenkomst valt meteen de royale openheid op: geen smalle hal, maar een directe verbinding met de lichte leefruimte. De fraaie laminaatvloer met marmerpatroon loopt door over de gehele begane grond en straalt luxe uit, terwijl de vloerverwarming voor aangename warmte zorgt.

KEUKEN
De moderne keuken is een plaatje voor de kookliefhebber. Uitgevoerd in stijlvol antraciet met een luxe natuurstenen werkblad. De keuken beschikt over hoogwaardige inbouwapparatuur: een 4-pits inductiekookplaat, koelkast, diepvries, vaatwasser, combimagnetron, oven en een elegante afzuigkap. De open verbinding met de woonkamer maakt het mogelijk om tijdens het koken contact te houden met familie en gasten.

WOONKAMER
De ruime, lichte woonkamer springt meteen in het oog dankzij de grote ramen aan de voor- én zijkant. Deze zorgen voor veel natuurlijk lichtinval in de gehele ruimte. Via de grote schuifpui bereikt u de overdekte veranda, waardoor er een naadloze overgang tussen binnen- en buitenleven ontstaat.

Halverwege de keuken en de woonkamer vindt u de trap naar de eerste verdieping, een kast en een modern toilet voorzien van een wandcloset en een fonteintje. Hierdoor ontstaat er een natuurlijke scheiding, zonder af te doen aan het open karakter van de woning.

EERSTE VERDIEPING
De eerste verdieping bereikt u via de markante open trap. Ook hier is vloerverwarming aanwezig voor optimaal comfort. Op de overloop bevindt zich, naast de toegang tot de badkamer en beide slaapkamers, een praktische kast waar de wasmachine- en drogeraansluitingen zijn ondergebracht, evenals de warmteterugwininstallatie.

SLAAPKAMER 1
De hoofdslaapkamer aan de achterzijde is een ruime, lichte kamer met een groot raam dat uitkijkt over de gemeenschappelijke tuin. De neutrale afwerking biedt alle vrijheid voor uw eigen inrichting. Er is voldoende ruimte voor een royaal tweepersoonsbed en een complete garderobekast.

SLAAPKAMER 2
De tweede slaapkamer bevindt zich aan de voorzijde en biedt flexibele gebruiksmogelijkheden. Of u deze nu inricht als kinderkamer, werkkamer of logeerkamer, in deze ruimte kan het allemaal. De twee grote ramen zorgen voor veel natuurlijk lichtinval.

BADKAMER
De moderne badkamer is voorzien van een ruime inloopdouche, een zwevend toilet, en een wastafelmeubel met spiegelkast. De strakke, witte betegeling en de glazen douchewand geven de badkamer een luxe uitstraling. Extra prettig is dat ook hier vloerverwarming aanwezig is.

BUITENRUIMTE
De woning beschikt over een groene voortuin en gebouwgebonden terras aan de achterzijde. Deze veranda is een verlengstuk van uw woonkamer. Het terras (8 m²) is overdekt en biedt hierdoor beschutting tegen zon en regen, waardoor u het buitenleven optimaal kunt benutten. De veranda kijkt uit op de gezamenlijke tuin die door de Groen Commissie wordt onderhouden.
De woning beschikt over een eigen parkeerplaats en een (aparte) berging.

GEMEENSCHAP EN NAOBERSCHAP
In Rivierduinen staat samenwerken en samenleven centraal. Het traditionele Achterhoekse naoberschap krijgt hier een moderne invulling door de verschillende commissies waarin bewoners actief zijn. Deze actieve betrokkenheid maakt Rivierduinen tot meer dan zomaar een wijk: het is een levendige gemeenschap waar bewoners elkaar kennen, helpen en samen bouwen aan een duurzame toekomst.

BIJZONDERHEDEN
• Nieuwbouwwoning uit 2023, alles in perfecte staat
• Energielabel A++++ met 6 zonnepanelen (eigendom via VvE)
• Vloerverwarming door de gehele woning
• Natuurstenen aanrechtblad in de keuken
• Overdekte veranda van bijna 8 m²
• Actieve VvE voor onderhoud gemeenschappelijke delen
• Deel van duurzame woonwijk Rivierduinen

Zoekt u een moderne, duurzame woning waar luxe en comfort samenkomen? Waar u deel uitmaakt van een hechte gemeenschap zonder uw privacy op te geven? Dan is deze stijlvolle hoekwoning aan de Oeverwal 1 precies wat u zoekt. Plan snel een bezichtiging en ervaar zelf de unieke sfeer van wonen in Rivierduinen!
Lees de volledige omschrijving

Contact

Maison Makelaars Graafschap Midden

Kenmerken

Algemeen

vraagprijs
€ 398.000 kosten koper
Aangeboden sinds
19 september 2025
Status
Beschikbaar
Aanvaarding
In overleg
Soort woonhuis
Eengezinswoning, hoekwoning
Soort bouw
Nieuwbouw
Bouwjaar
2023
Soort dak
Bitumineuze dakbedekking
Ligging
Aan rustige weg

Oppervlakten en inhoud

Wonen
90 m²
Gebouwgebonden Buitenruimte
8 m²
Externe bergruimte
5 m²
Inhoud
330 m³

Indeling

Aantal kamers
3 kamers (2 slaapkamers)
Aantal badkamers
1 badkamer
Badkamervoorzieningen
Douche, toilet, wastafel
Aantal woonlagen
2
Voorzieningen
Glasvezel kabel, mechanische ventilatie, schuifpui, zonnecollectoren

Energie

Energielabel
A++++
Isolatie
Dakisolatie, dubbel glas, muurisolatie, vloerisolatie
Verwarming
Vloerverwarming geheel, warmtepomp

Kadastrale gegevens

Perceelnaam
Oude IJsselstreek E 5926
Eigendomssituatie
Gebruik en bewoning

Buitenruimte

Tuin
Achtertuin
Achtertuin
8 m²
Ligging tuin
Oost
Bekijk alle kenmerken