ph@maisonmakelaars.nl 077 308 29 46
Verkocht

Langveld 28 Meijel

Omschrijving

Wil je graag een nieuwbouwwoning maar duurt de bouw je te lang? Dan hebben wij de perfecte oplossing! Deze prachtige twee onder één kapwoning is namelijk in april 2019 pas opgeleverd en dus nog helemaal nieuw. De woning heeft een ruime leefkeuken en een fijne woonkamer met openslaande deur naar de achtertuin. Op de verdieping bevinden zich drie slaapkamers en een luxe badkamer. De zolder is met een vaste trap bereikbaar. Naast de woning ligt de garage en een oprit.

ALGEMEEN:

Deze mooie woning ligt in nieuwbouwplan Startebos in Meijel aan de rand van het bos in een groene omgeving. Vanuit de keuken en de slaapkamer aan de voorzijde heb je blijvend vrij zicht op de bosrand. De woning is duurzaam en energiezuinig gebouwd met compleet isolatiepakket en vijf zonnepanelen. Het centrum met alle voorzieningen, een basisschool en diverse speeltuintjes bevinden zich allemaal op loopafstand.

BEGANE GROND:

ENTREE

Via de oprit is de voordeur bereikbaar waardoor je binnenkomt in de ontvangsthal. Hier bevindt zich de meterkast met slimme meter en aansluiting op het glasvezelnetwerk, een toiletruimte en een handige berging onder de trap.

WOONKAMER

De woonkamer ligt aan de achterkant van de woning zodat je altijd fijn uitzicht op de tuin hebt en bovendien veel privacy doordat de zithoek zich achter de ontvangsthal bevindt. De gehele begane grond heeft een strakke, lichtgrijze gietvloer met vloerverwarming. Door de raampartij tot op de vloer en de openslaande deur naar de achtertuin valt er veel daglicht naar binnen.

KEUKEN

De ruime leefkeuken bevindt zich aan de voorkant van de woning en heeft een prachtige keuken met eiland. De keukenkastjes en -lades zijn uitgevoerd in hoogglans wit met houten achterwanden, wat de keuken een luxe uitstraling geeft. De keuken is uitgerust met een vierpits inductiefornuis met afzuigkap, elektrische oven, vaatwasser, koelkast en een vriezer met drie lades. De drie ramen lopen van plafond tot de vloer wat niet alleen voor heerlijk veel licht zorgt maar ook voor een mooi uitzicht op de bosrand.

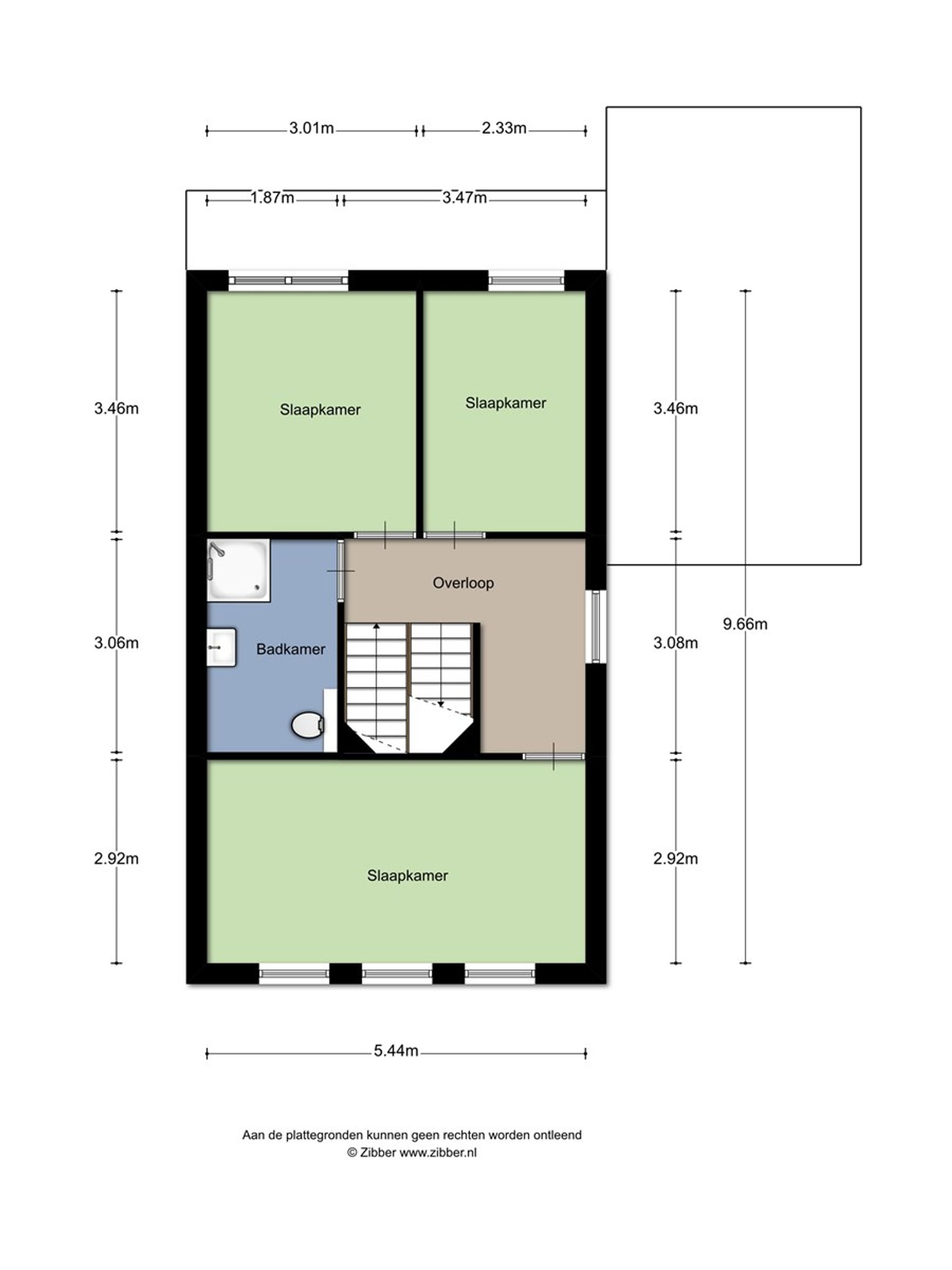
VERDIEPING:

Via de witte houten trap in de hal kom je op de bovenverdieping met een ruime overloop. Op de verdieping zijn drie slaapkamers aanwezig en een luxe badkamer. De overloop en slaapkamers zijn voorzien van een laminaatvloer. De gehele verdieping bevat vloerverwarming.

SLAAPKAMERS

De masterbedroom ligt aan de voorkant van de woning over de volledig breedte en heeft drie draaikiepramen die uitkijken over de bosrand. Deze slaapkamer heeft ook de beschikking over een televisieaansluiting. De andere twee slaapkamers liggen aan de achterzijde en beschikken beide over een draaikiepraam.

BADKAMER

De ruime en luxe badkamer is uitgerust met een inloopdouche met glazen wand, een toilet, wasbak en een designradiator. De badkamer is geheel betegeld met grijze tegels en de achterwand van het toilet heeft patroontegels in een grijstint. De mechanische ventilatie heeft een vochtsensor waardoor deze automatisch begint te ventileren als het vochtniveau in de badkamer te hoog wordt.

ZOLDER:

De zolder is bereikbaar met een vaste trap. Hier is genoeg ruimte om een vierde slaapkamer te realiseren. Aan de achterzijde bevindt zich een Velux dakraam en achter een wand hangt de Remeha CV ketel en de aansluiting van de zonnepanelen. Ook zijn er witgoedaansluitingen voor een wasmachine en een droger aanwezig.

GARAGE / BERGING:

De garage ligt langs de woning aan het eind van de oprit en heeft een oppervlak van ongeveer 3 bij 6 meter. Via de handbediende kantelpoort (met loopdeur) kan een auto binnen geplaatst worden. Een deur aan de achterkant van de garage komt uit in de tuin. De garage is voorzien van stroom en verlichting.

TUIN:

De achtertuin moet nog aangelegd en omheind worden en is dus geheel naar eigen wens in te richten. Er is een buitenkraan aanwezig en er liggen stroomkabels zodat er eenvoudig enkele stopcontacten aangesloten kunnen worden. De tuin is toegankelijk via de woonkamer en via de garage.

OVERIGE INFORMATIE:

AANVAARDING & VOORWAARDEN BIJ VERKOOP:

De aanvaarding geschiedt in onderling overleg.

Financieringsvoorbehoud : 5 weken

Bankgarantie of waarborgsom : vereist

ENERGIELABEL:

Verkoper beschikt nog niet over een definitief energielabel.

Er wordt voorafgaand aan overdracht een definitief energielabel geleverd.

STAAT VAN ONDERHOUD:

De staat van onderhoud van de woning is uitstekend. De woning is pas net opgeleverd en dus nog helemaal nieuw.

VERWARMING & ISOLATIE:

Verwarming geschiedt door middel van een Remeha CV ketel uit 2019 en vijf zonnepanelen. De woning is voorzien van een optimaal isolatiepakket met dakisolatie, vloerisolatie en spouwmuurisolatie. Op de begane grond en op de eerste verdieping is vloerverwarming aanwezig. Alle ramen zijn voorzien van HR++ glas.

LIGGING:

De woning ligt in nieuwbouwplan Startebos in Meijel aan de rand van het bos in een groene omgeving. Het centrum met alle voorzieningen, een basisschool en diverse speeltuintjes bevinden zich allemaal op loopafstand.

NUTSVOORZIENINGEN:

De woning is rechtstreeks aangesloten op de openbare leidingen voor water, energie en riool en beschikt over een aansluiting op het kabel- en glasvezelnetwerk.

LIJST ROERENDE ZAKEN & VRAGENLIJST WETTELIJKE INFORMATIEPLICHT:

De lijst van roerende zaken en de vragenlijst wettelijke informatieplicht verkoper(s) is digitaal bij ons aanwezig en is op aanvraag verkrijgbaar.

BOUWTEKENINGEN:

Van deze woning zijn momenteel geen bouwtekeningen beschikbaar.

Lees de volledige omschrijving

Contact

Maison Makelaars Peel en Maas / Horst aan de Maas

Kenmerken

Algemeen

Aangeboden sinds
6+ maanden
Status
Verkocht
Aanvaarding
In overleg
Soort woonhuis
Eengezinswoning, geschakelde 2-onder-1-kapwoning
Soort bouw
Bestaande bouw
Bouwjaar
2018
Soort dak
Bitumineuze dakbedekking, pannen

Oppervlakten en inhoud

Wonen
145 m²
Overige inpandige ruimte
18 m²
Perceel
227 m²
Inhoud
585 m³

Indeling

Aantal kamers
5 kamers (4 slaapkamers)
Aantal badkamers
1 badkamer
Aantal woonlagen
3
Voorzieningen
Dakraam, mechanische ventilatie, zonnepanelen

Energie

Energielabel
A
Isolatie
Dubbel glas, hr-glas, volledig geïsoleerd
Verwarming
C.v.-ketel, vloerverwarming gedeeltelijk
Warm water
C.v.-ketel

Buitenruimte

Tuin
Achtertuin, voortuin

Garage

Capaciteit
1 auto
Voorzieningen
Met vliering, voorzien van elektra

Parkeergelegenheid

Soort parkeergelegenheid
Op eigen terrein, openbaar parkeren
Bekijk alle kenmerken