ph@maisonmakelaars.nl 077 308 29 46
Onder optie

Kraakstraat 22 Hunsel

Omschrijving

OBJECTOMSCHRIJVING:
Deze prachtig gerenoveerde jaren ’30 woning combineert authentieke charme met stijl en hedendaags wooncomfort. Vanaf het moment dat je hier binnenloopt, voel je de warme sfeer en zie je het vakmanschap waarmee de woning is gemoderniseerd met behoud van de originele details. De ruime woonkamer ademt karakter dankzij de typische jaren ’30 erker, hoge plafonds en de sfeervolle houtkachel die uitnodigt tot lange avonden bij het haardvuur. Aan de achterzijde ligt de landelijke keuken, voorzien van een gezellige schouw en alle moderne gemakken. Achter de keuken bevindt zich nog een praktische bijkeuken, ideaal met een extra keukenblokje en bergruimte. Op de eerste verdieping liggen drie slaapkamers waarvan twee royale kamers en een derde, compacte kamer die perfect dienst kan doen als werk- of kinderkamer. De badkamer is stijlvol en praktisch ingericht met een inloopdouche en een ligbad, een fijne plek om te ontspannen na een lange dag.
Via een vaste trap bereik je de zolderverdieping, waar over de gehele lengte een dakkapel is geplaatst. Hierdoor geniet je van veel natuurlijk licht en een fantastisch uitzicht over de achterliggende landerijen. De zichtbare dakspanten geven deze ruimte extra karakter. Deze verdieping biedt volop mogelijkheden om één of twee extra slaapkamers of een werk- of hobbyruimte te realiseren. De achtertuin is een waar buitenparadijs: ruim, groen en met optimale privacy. Onder de grote plataanboom geniet je van de schaduw in de zomer, terwijl de loungehoek met buitenkeuken uitnodigt tot lange avonden met familie en vrienden. De ruime garage maakt het geheel compleet. Of je nu wilt ontspannen, tuinieren of genieten van het uitzicht, hier kan het allemaal!

ALGEMEEN:
De woning ligt aan een doorgaande weg, maar dankzij de uitstekende isolatie en de royale, diepe achtertuin geniet je binnen en buiten van verrassend veel rust en privacy. Hunsel is een charmant en groen dorp in de gemeente Leudal op korte afstand van de A2, waardoor steden als Weert, Roermond, Eindhoven en Maastricht eenvoudig te bereiken zijn. De landelijke omgeving leent zich uitstekend voor wandelen en fietsen met uitgestrekte natuur en fraaie boerderijen in de omgeving. In het dorp ligt een basisschool op loopafstand van de woning en een bakker bevindt zich aan de overkant van de straat. Voor de weekboodschappen en overige voorzieningen liggen omliggende kernen als Ittervoort en Ell op korte afstand. Dankzij deze centrale ligging combineert Hunsel het landelijke wonen met een verrassend snelle toegang tot provinciale wegen en snelwegen.

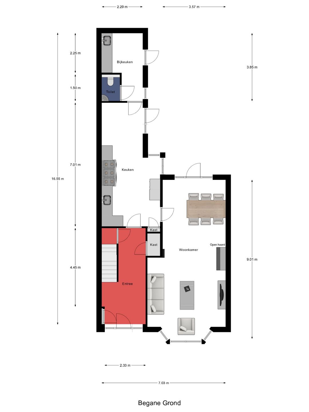
BEGANE GROND:
ENTREE
Via een charmant paadje door de verzorgde voortuin, omheind door sierlijke hekjes en groene heggen, wandel je naar de prachtige voordeur. Deze is nog maar anderhalf jaar geleden vernieuwd geheel in jaren ’30 stijl, maar met het comfort van nu. De hal verwelkomt je met een originele authentieke tegelvloer, die uitzonderlijk goed bewaard is gebleven en meteen karakter toevoegt. In de houten kast bevindt zich de meterkast met glasvezelaansluiting, terwijl een handige garderobekast zorgt voor een opgeruimde entree. Achter een deur ligt de trap naar de kelder waar een stalen poortje toegang geeft tot de wijnkelder. De ruimte is ideaal voor het bewaren van wijn maar natuurlijk ook voor voorraad of andere spullen. In de kelder is ook de verdeler van de vloerverwarming geplaatst en bovenaan bij de trap hangt de Nefit CV ketel (2018).

KEUKEN
Vanuit de hal loop je door naar de ruime woonkeuken, het hart van het huis. Hoewel de keuken al meer dan vijftien jaar geleden is geplaatst, oogt ze nog steeds tijdloos en sfeervol. De landelijke kastfronten, gecombineerd met het donker granieten werkblad, geven de ruimte een warme, huiselijke uitstraling. Kookliefhebbers kunnen hier hun hart ophalen met maar liefst zes gaspitten, een dubbele oven en een combimagnetron. Verder is de keuken uitgerust met een grote koelkast, vaatwasser en een praktische muurkast voor extra opbergruimte. Er is voldoende plek voor een eettafel en een airco zorgt voor een aangenaam binnenklimaat. Achter de keuken ligt een praktische bijkeuken met een wasbak, inbouwkasten en een toiletruimte met wandtoilet en fonteintje. Zowel vanuit de keuken als de bijkeuken stap je zo de achtertuin in, een fijne verbinding tussen binnen en buiten.

WOONKAMER
De woonkamer ademt pure jaren ’30 charme en is tot in de details perfect gestyled. De houtkachel vormt het warme middelpunt van de ruimte, waar je ’s avonds heerlijk bij kunt ontspannen. De erker aan de voorzijde vangt het zonlicht vanuit het zuidwesten, waardoor de woonkamer een prettige, lichte sfeer heeft. Op warme dagen kun je de markies buiten uitrollen en de rolluikjes sluiten voor verkoeling en privacy. Aan de achterzijde zorgt de openslaande deur voor een directe verbinding met het terras onder de plataanboom, een prachtige plek om te genieten van de rust en het uitzicht. Zowel de woonkamer als de keuken en de bijkeuken en toilet zijn afgewerkt met een pvc-vloer in houtmotief en voorzien van vloerverwarming, wat zorgt voor zowel comfort als een stijlvolle uitstraling.

VERDIEPING:
Via de authentieke houten trap in een warme, donkere kleur kom je op de eerste verdieping, waar de combinatie van sfeer en functionaliteit direct opvalt. De overloop en de drie slaapkamers zijn allemaal afgewerkt met een pvc-vloer in houtmotief.

SLAAPKAMERS
De twee grootste slaapkamers zijn ongeveer gelijk van afmeting en beide heerlijk licht. De slaapkamer aan de voorzijde heeft twee ramen én een deur naar een charmant balkon waar je op zonnige dagen even naar buiten kunt stappen. Alle ramen en de balkondeur zijn voorzien van (elektrische) rolluiken, zodat je het hier aangenaam koel en donker kunt houden. De slaapkamer aan de achterzijde is minstens zo fraai, met een grote raampartij en twee draaikiepramen die niet alleen voor veel licht zorgen maar ook voor een fantastisch uitzicht over de uitgestrekte landerijen. Elke ochtend wakker worden met zo’n uitzicht is een cadeautje. Zowel deze kamer als de kamer aan de voorzijde zijn uitgerust met een airco zodat het hier altijd comfortabel slapen is. De derde slaapkamer is wat kleiner, maar daardoor juist knus en veelzijdig. Perfect als babykamer, kinderkamer of thuiswerkplek. Ook hier is een draaikiepraam met rolluik aanwezig.

BADKAMER
De badkamer is praktisch en sfeervol ingericht met alles wat je nodig hebt voor een comfortabel dagelijks ritueel. De ruime inloopdouche heeft zowel een grote regendouche als een handdouche en in de ingebouwde nis is plek voor shampoo en zeep. Daarnaast is er een ligbad om heerlijk in te ontspannen en een dubbele wastafel met opbergmeubel, zodat er voor iedereen genoeg ruimte is. De elektrische designradiator zorgt voor een behaaglijke temperatuur, ook op koude ochtenden. Wat deze badkamer extra bijzonder maakt is het vrije uitzicht over de achterliggende landerijen. Je geniet van het licht en het uitzicht zonder inkijk van buren. Voor extra privacy kun je de rolluiken bij de draaikiepvensters sluiten. De afwerking in rustige natuurtinten geeft de ruimte een kalme sfeer waarin je helemaal tot rust komt.

ZOLDER:
De zolder is bereikbaar met een vaste trap. Bovenaan word je verwelkomd door een prachtige glas-in-loodschuifdeur die direct de sfeer van de jaren ’30 oproept en de zolder een uniek karakter geeft.
Zodra je de ruimte betreedt, valt je oog meteen op het indrukwekkende uitzicht. De grote dakkapel strekt zich uit over de volledige lengte van de zolder en bestaat uit maar liefst zes ramen, waarvan vier draaikiepramen. Hierdoor baadt de ruimte in natuurlijk daglicht en geniet je van een panoramisch uitzicht over de achterliggende landerijen, elke dag weer anders maar altijd prachtig. De dakspanten zijn bewust in het zicht gelaten, wat de zolder een robuuste en sfeervolle uitstraling geeft. Dankzij de handige indeling kun je hier met gemak één of twee extra slaapkamers creëren of juist kiezen voor een royale werk- of hobbyruimte waar rust en inspiratie samenkomen. Een compact keukenblokje met warm en koud water maakt de ruimte extra veelzijdig. De aansluitingen hiervan bieden bovendien de mogelijkheid om hier eenvoudig een tweede badkamer te realiseren. Ook de witgoedaansluitingen bevinden zich op deze verdieping, praktisch en uit het zicht. De aanwezige airco kan zowel koelen als verwarmen, waardoor het hier het hele jaar door comfortabel vertoeven is. Ook op de zolder ligt een pvc vloer.



Tuin
TUIN:
Zodra je via de keuken, de bijkeuken of de woonkamer naar buiten stapt, kom je in een prachtige tuin die helemaal is ingericht op genieten. Direct achter de woning staat een imposante plataanboom, waaronder een gezellig terras is aangelegd. Deze boom is niet alleen een sfeermaker maar zorgt op warme zomerdagen ook voor heerlijke natuurlijke schaduw, waardoor het binnen in huis aangenaam koel blijft. Via het tuinpad wandel je verder naar achteren en onderweg ontdek je steeds weer nieuwe hoekjes. Druivenstruiken groeien sierlijk langs een tweede zithoekje, een houtopslag waar je veel hout in kwijt kunt voor de kachel, een enorme boom die voor karakter zorgt en een lief appelboompje dat elk jaar weer voor een vleugje landelijke charme zorgt.
Achter in de tuin ligt de loungeplek, een waar paradijs voor liefhebbers van het buitenleven. Hier kun je urenlang genieten van het vrije uitzicht over de landerijen, dat telkens verandert met de seizoenen. De ruimte is voorzien van een buitenkeuken met wasbak en keukenkastjes (het gasfornuis is nog niet aangesloten), een grote eettafel voor lange zomeravonden én zelfs een zitgedeelte met bank en televisie. Hier wordt binnenleven moeiteloos buitenleven: van borrels met vrienden tot rustige avonden onder de sterrenhemel. De tuin is verder aangelegd met gazon en rijke plantenborders, die het geheel een groene en verzorgde uitstraling geven. Via een poortje aan de achterzijde wandel je zo het platteland op. Verder is de tuin voorzien van buitenkranen, stopcontacten en verlichting, zodat je er ook ’s avonds comfortabel van kunt genieten. Tot slot is er nog een grote garage, bestaande uit twee gedeeltes. In het voorste deel is ruimte om fietsen te stallen of zelfs een auto binnen te zetten, terwijl het achterste deel is ingericht als werkplaats, ideaal voor klussers of hobbyisten. Voor de garage ligt een oprit met dubbele poort waardoor je ook hier gemakkelijk in en uit kunt rijden. En tegen de gevel bij de oprit groeien twee perenbomen die perfect passen bij de landelijke sfeer. Deze tuin is echt een verlengstuk van de woning: ruim, groen, praktisch en vol beleving. Een plek waar elk seizoen zijn eigen charme heeft en waar buiten zijn vanzelfsprekend wordt.
Lees de volledige omschrijving

Contact

Maison Makelaars Peel en Maas / Horst aan de Maas

Kenmerken

Algemeen

Aangeboden sinds
17 oktober 2025
Status
Onder optie
Aanvaarding
In overleg
Soort woonhuis
Eengezinswoning, vrijstaande woning
Soort bouw
Bestaande bouw
Bouwjaar
1935
Soort dak
Pannen
Ligging
In woonwijk

Oppervlakten en inhoud

Wonen
178 m²
Externe bergruimte
29 m²
Perceel
530 m²
Inhoud
712 m³

Indeling

Aantal kamers
5 kamers (4 slaapkamers)
Aantal badkamers
1 badkamer
Badkamervoorzieningen
Douche, dubbele wastafel, ligbad, toilet, wastafel
Aantal woonlagen
3
Voorzieningen
Airconditioning, buitenzonwering, dakraam, glasvezel kabel, rolluiken, tv kabel, zonnecollectoren

Energie

Energielabel
B
Isolatie
Dakisolatie, dubbel glas, muurisolatie, vloerisolatie
Verwarming
Airconditioning, cv ketel, houtkachel, vloerverwarming gedeeltelijk
Warm water
Cv ketel
Cv-ketel
Nefit ( gestookt uit 2018, eigendom)

Kadastrale gegevens

Perceelnaam
Leudal B 1802
Oppervlakte
530 m²
Eigendomssituatie
Volle eigendom

Buitenruimte

Tuin
Achtertuin
Achtertuin
330 m²
Ligging tuin
Oost

Garage

Capaciteit
1 auto
Voorzieningen
Voorzien van elektra
Bekijk alle kenmerken