rmre@maisonmakelaars.nl 0475 47 58 31
Verkocht

Kloosterstraat 10 Heythuysen

Omschrijving

Vrijstaande woning met garage, rustig gelegen met veel privacy in het centrum van Heythuysen. Tuin met eigen oprit en garage, 3 slaapkamers en badkamer op de 1e verdieping, woonkamer met een ruime open keuken, aparte berging met aansluiting voor het witgoed.
Energielabel --> B

Rustig gelegen in het centrum. A2 is op 15 auto minuten bereikbaar. A73 is op 20 autominuten bereikbaar.

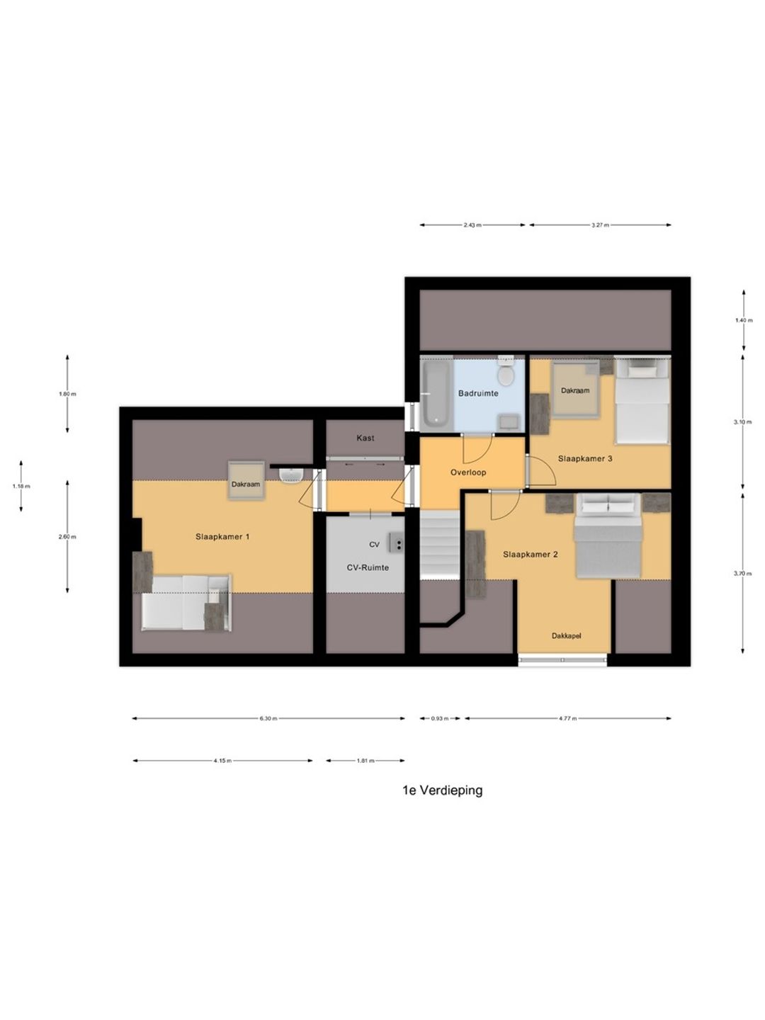
Indeling:

Begane grond:
Ruime hal/entree met veel lichtinval. Deze entree geeft toegang tot de woonkamer,
4e slaapkamer, zeer geschikt als werkkamer, meterkast en tevens de trap naar de 1e verdieping.

De woonkamer en de open keuken en hebben een mooi zicht op de achtertuin.

De keuken (eiken) is voorzien van:
- Keramisch kookplaat 4 pits, inbouw
- Koelkast inbouw
- Aparte diepvries inbouw
- Vaatwasmachine, inbouw
- Afzuigkap
- Magnetron
- Mengkraan

Grenzend aan de keuken bevindt zich de berging/wasruimte met de aansluitingen voor het witgoed.
In de berging is ook de toegang naar het toilet en de tuin.

Eerste verdieping: Overloop met toegang tot de badkamer en de 3 slaapkamers. De grote slaapkamer is knus gelegen onder het schuine dak.
De badkamer is voorzien van:
- Zwevend toilet
- Aparte douche met schuifwand
- Thermostatische watermengkraan
- Wastafel met onderkast, met een mengkraan: een hand bediening
- Kolomkast voor de handdoeken

Algemeen:
De gehele begane grond (op de woonkamer na) is voorzien van een mooie licht beige kleurige vloertegel.
Met 2 treden kom je in de woonkamer deze is voorzien van een mooie Grenen houten vloer.
Alle raamkozijnen zijn geheel van hout en voorzien van isolatieglas.
Glasvezel is aanwezig.
De woning heeft een definitief energielabel B

AANVAARDING:
In overleg ---> kan direct

Interesse? Bel voor een bezichtiging: 0475-475831
Lees de volledige omschrijving

Contact

Maison Makelaars RMRE

Kenmerken

Algemeen

Aangeboden sinds
6+ maanden
Status
Verkocht
Aanvaarding
In overleg
Soort woonhuis
Eengezinswoning, vrijstaande woning
Soort bouw
Bestaande bouw
Bouwjaar
1909
Soort dak
Pannen
Ligging
In centrum

Oppervlakten en inhoud

Wonen
135 m²
Externe bergruimte
18 m²
Perceel
340 m²
Inhoud
510 m³

Indeling

Aantal kamers
5 kamers (4 slaapkamers)
Aantal woonlagen
2

Energie

Energielabel
B
Verwarming
Cv ketel
Warm water
Cv ketel
Cv-ketel
Vaillant Thermo Compact (gas gestookt combiketel uit 2014, eigendom)

Kadastrale gegevens

Perceelnaam
Leudal C 4155
Oppervlakte
340 m²
Eigendomssituatie
Volle eigendom

Buitenruimte

Tuin
Achtertuin
Achtertuin
100 m²
Ligging tuin
Noord
Bekijk alle kenmerken