gm@maisonmakelaars.nl 0314 39 26 84
Verkocht

Hackfort 50 Doetinchem

Omschrijving

Karaktervolle vrijstaande woning met unieke architectuur? U vindt het in deze bijzondere woning in de gewilde woonwijk De Huet! Met zijn markante A-frame constructie, riante tuin en royale kamers is dit een woning die direct in het oog springt. De drie slaapkamers, sfeervolle inbouw Houthaard en uitstekende staat van onderhoud maken dit tot een comfortabel gezinshuis waar u direct kunt intrekken. Deze woning combineert karakter en ruimte op een prachtige locatie in Doetinchem.

IN HET KORT
- Vrijstaande woning met karakteristieke architectuur
- Riante, zonnige tuin met veel privacy
- 4 kamers, waarvan 3 slaapkamers
- Sfeervolle woonkamer met inbouw Houthaard
- Ruime open keuken met alle gewenste apparatuur
- Eigen oprit met carport
- Gelegen in de populaire woonwijk De Huet

ALGEMEEN
De Huet is een geliefde woonwijk in Doetinchem, gebouwd in de jaren '80 en bekend om zijn ruime opzet en groene karakter. Alle dagelijkse voorzieningen zijn binnen handbereik, waaronder supermarkten, scholen, sportfaciliteiten en openbaar vervoer. Een groot pluspunt is het treinstation De Huet, dat op slechts vijf minuten fietsen ligt. Het centrum van Doetinchem is enkele minuten met de fiets of auto verwijderd, waar u kunt genieten van diverse winkels, restaurants en culturele voorzieningen. De uitvalswegen naar de A18 zijn goed bereikbaar, wat zorgt voor een snelle verbinding met omliggende steden als Arnhem en Zutphen. Deze ideale ligging combineert het gemak van stadse voorzieningen met de rust van het wonen in een groene omgeving.

BEGANE GROND
ENTREE
Via de verzorgde voortuin en eigen oprit met (verlichte) carport bereikt u de entree van deze karakteristieke woning. De hal met bakstenen wanden geeft direct een indruk van de warme uitstraling die zo kenmerkend is voor deze woning. De hal biedt toegang tot het toilet, de woonkamer en de vaste trap naar de eerste verdieping. De luxe Portugese Estremoz marmervloer die u hier aantreft, loopt door in de gehele begane vloer van de woning en draagt bij aan de hoogwaardige uitstraling. Tevens is de gehele begane vloer voorzien van vloerverwarming.

WOONKAMER
De royale woonkamer verrast direct door zijn ruimtelijke effect en de karakteristieke bakstenen wanden. De grote raampartijen zorgen voor een prettige lichtinval en een mooi uitzicht op de tuin. De sfeervolle inbouw Houthaard vormt het middelpunt van de ruimte en zorgt in de koudere maanden voor een behaaglijke warmte. De hoogwaardige Portugese Estremoz marmervloer geeft de ruimte een luxueuze uitstraling en loopt naadloos door naar de aangrenzende eetkamer. De indeling biedt plaats aan zowel een royale zithoek als een grote eettafel – ideaal voor het ontvangen van gasten.

KEUKEN
De open keuken staat in directe verbinding met de woonkamer, wat zorgt voor een prettige leefruimte waar koken en gezelligheid samenkomen. De houten keuken is uitgevoerd met een fraai tegelblad en voorzien van alle moderne apparatuur: een 4-pits inductiekookplaat, koelkast, diepvries, afzuigkap, vaatwasser en Grill bak oven (Miele). De afzuigkap is stijlvol weggewerkt in het ontwerp, wat zorgt voor een strakke en rustige uitstraling.

BIJKEUKEN
Aangrenzend aan de keuken bevindt zich een praktische bijkeuken. Deze functionele ruimte biedt toegang tot de garage en de tuin, en is ideaal voor het opbergen van voorraad en huishoudelijke apparatuur.

GARAGE
De inpandige garage mét zolder is bereikbaar vanuit de bijkeuken en biedt volop ruimte voor opslag of het stallen van uw auto. Via een deur achter in de garage heeft u direct toegang tot de achtertuin.

EERSTE VERDIEPING
Via de trap in de hal bereikt u de overloop van de eerste verdieping, die toegang biedt tot drie ruime slaapkamers en de badkamer.

SLAAPKAMER 1
De hoofdslaapkamer is bijzonder royaal en licht door het grote raam met toegang tot het balkon aan de voorzijde van de woning. De bakstenen wand in combinatie met de witte, stenen vloer zorgen direct voor een aangename sfeer. Deze kamer biedt ruim voldoende plaats voor een tweepersoonsbed en een grote garderobekast. De plafondventilator zorgt voor een aangename luchtcirculatie tijdens warmere dagen.

SLAAPKAMER 2
De tweede slaapkamer bevindt zich eveneens aan de voorzijde van de woning en heeft ook toegang tot het balkon. Ook hier brengt de bakstenen wand direct sfeer. De kamer biedt voldoende ruimte voor een bed, bureau en kast, en is daarmee perfect als kinder- of logeerkamer.

SLAAPKAMER 3
De derde slaapkamer bevindt zich aan de achterzijde van de woning en beschikt over dezelfde afwerking als de andere kamers. Door het grote raam geniet u van veel natuurlijk licht en een fraai uitzicht op de tuin. Ook deze kamer is voorzien van een plafondventilator voor extra comfort tijdens warme dagen.
BADKAMER
De ruime badkamer is volledig betegeld in lichte tinten en voorzien van een ligbad, separate douchecabine, wastafel en toilet. De badkamer is bijzonder praktisch ingedeeld, met voldoende bewegingsruimte rond alle elementen. Het raam zorgt voor natuurlijke ventilatie en lichtinval.

TWEEDE VERDIEPING
Via een vaste trap bereikt u de ruime en lichte zolderverdieping. Deze verdieping is deels afgewerkt en biedt tal van mogelijkheden. Momenteel is hier de witgoedaansluiting gesitueerd en wordt de ruimte gebruikt als opslag, maar de zolder zou ook kunnen worden omgebouwd tot een extra slaapkamer, thuiswerkplek of hobbyruimte. De cv-ketel bevindt zich eveneens op deze verdieping.

TUIN
De riante tuin rondom de woning is een ware oase van rust en groen. De achtertuin is fraai aangelegd met een gazon, borders met vaste planten en sierheesters, en diverse volwassen bomen die zorgen voor een natuurlijke afscheiding. Dankzij de gunstige ligging kunt u op verschillende momenten van de dag van de zon genieten. De zijtuin biedt een mooi aangelegde border met kleurrijke beplanting. De tuin is onderhoudsvriendelijk ingericht en biedt diverse terrassen, ideaal voor buitenleven in de zomermaanden.

BIJZONDERHEDEN
- Unieke A-frame architectuur met bakstenen gevels
- Luxe tegelvloer door de gehele woning
- Ruime garage met verwarming
- Royale badkamer met zowel ligbad als inloopdouche
- Treinstation op slechts 5 minuten fietsafstand
- Ruime zolderverdieping
- Nabij kinderboerderij en andere gezinsvriendelijke voorzieningen

Bent u op zoek naar een unieke vrijstaande woning met karakter en comfort? Dan is deze woning aan de Hackfort in Doetinchem uw bezichtiging meer dan waard. Neem contact met ons op voor een persoonlijke rondleiding!
Lees de volledige omschrijving

Contact

Maison Makelaars Graafschap Midden

Kenmerken

Algemeen

Aangeboden sinds
6+ maanden
Status
Verkocht
Aanvaarding
In overleg
Soort woonhuis
Eengezinswoning, vrijstaande woning
Soort bouw
Bestaande bouw
Bouwjaar
1987
Soort dak
Pannen
Ligging
Aan rustige weg, in woonwijk

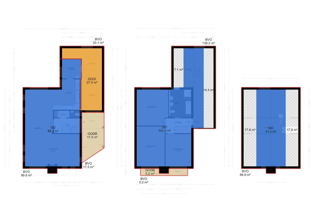
Oppervlakten en inhoud

Wonen
230 m²
Overige inpandige ruimte
27 m²
Gebouwgebonden Buitenruimte
22 m²
Perceel
493 m²
Inhoud
895 m³

Indeling

Aantal kamers
5 kamers (3 slaapkamers)
Aantal badkamers
1 badkamer
Badkamervoorzieningen
Douche, dubbele wastafel, ligbad, toilet
Aantal woonlagen
3
Voorzieningen
Buitenzonwering, glasvezel kabel, rolluiken, rookkanaal

Energie

Energielabel
C
Isolatie
Dakisolatie, dubbel glas, muurisolatie, vloerisolatie
Verwarming
Cv ketel, open haard, vloerverwarming gedeeltelijk
Warm water
Cv ketel
Cv-ketel
Vaillant (gas gestookt combiketel uit 2012, eigendom)

Kadastrale gegevens

Perceelnaam
Doetinchem A 2302
Oppervlakte
493 m²
Eigendomssituatie
Volle eigendom

Buitenruimte

Tuin
Achtertuin, voortuin
Achtertuin
200 m²
Ligging tuin
Noordoost

Garage

Capaciteit
1 auto
Voorzieningen
Met vliering, voorzien van elektra
Bekijk alle kenmerken