gm@maisonmakelaars.nl 0314 39 26 84

Groen Van Prinstererlaan 9 Doetinchem

Vraagprijs € 379.000 k.k.

Omschrijving

Sfeervol wonen met volop mogelijkheden: deze karakteristieke twee-onder-een-kapwoning uit 1955 is gelegen in een rustige en geliefde woonwijk in Doetinchem. Met een ruim perceel van 332 m², een zonnige achtertuin op het zuidoosten, drie volwaardige slaapkamers, vrijstaande berging en een vrijstaande garage vormt deze woning de ideale basis voor comfortabel gezinsleven. De woning is goed onderhouden en biedt tegelijkertijd volop kansen om deze geheel naar eigen smaak te moderniseren en te verduurzamen.



IN HET KORT
- Karakteristieke woning van 98 m²
- Zeer goed onderhouden woning
- Ruime woonkamer met vloerverwarming en schuifdeur naar de tuin
- Aparte keuken met veel daglicht en vloerverwarming
- Drie slaapkamers, waarvan de hoofdslaapkamer voorzien van airco
- Volledig omheinde, groene tuin met overdekt terras en volwassen boom
- Vrijstaande garage en bijkeuken, beide bereikbaar vanuit de tuin
- Vrije achterom en ruime oprit
- Gelegen nabij scholen en openbaar vervoer

ALGEMEEN
De Groen van Prinstererlaan is een rustige, groene laan in een van de fijnere woonbuurten van Doetinchem. De wijk kenmerkt zich door volwassen bomen, ruime kavels en weinig doorgaand verkeer – prettig wonen zonder de drukte. Dagelijkse voorzieningen, scholen, speeltuin en het centrum van Doetinchem zijn snel bereikbaar, net als de A18 voor wie verder de regio in wil.

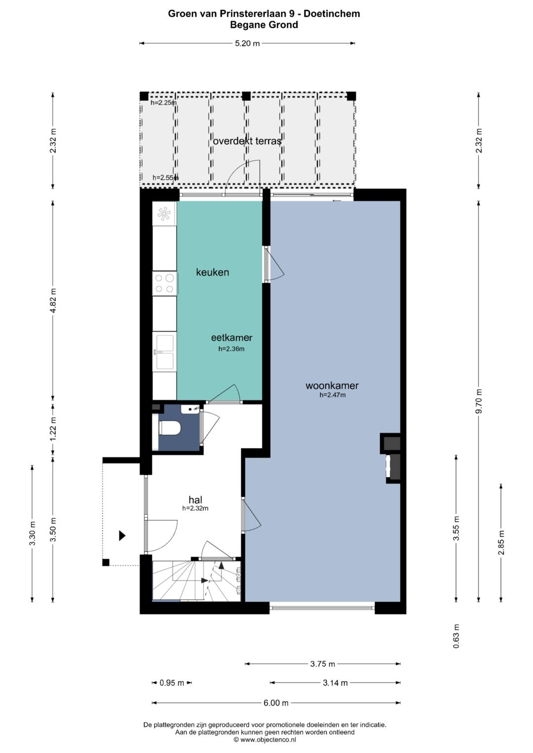
BEGANE GROND
ENTREE
De entree zet meteen de toon. Onbewerkte bakstenen muren, een houten voordeur met glas-in-lood en een sierlijk raam ernaast laten meteen de karakteristiek van deze woning zien. Hier bevinden zich de trapopgang naar de eerste verdieping, uiteraard de toegang tot de woonkamer, en een apart toilet met staand closet en fonteintje. Extra praktisch is de kelderkast onder de trap voor extra bergruimte.

WOONKAMER
De woonkamer is groot en sfeervol. De tegelvloer met vloerverwarming geeft de ruimte warmte, terwijl de bakstenen schouw met haard het sfeervolle middelpunt vormt. Grote raampartijen aan zowel voor- als achterzijde zorgen voor lichtinval op elk moment van de dag. Via de schuifdeur aan de achterkant verbindt de woonkamer zich met het overdekte terras, wat de ruimte bijna naadloos laat overlopen naar buiten.

KEUKEN
De keuken is een ruimte apart in meer dan één opzicht. De houten balken aan het plafond, de bakstenen muren en het grote raam boven het werkblad geven haar een uitgesproken karakter. De keuken is voorzien van een 4-pits gaskookplaat, afzuigkap, inbouw koeldiepvries en vaatwasser, en het keukenblad is uitgevoerd in tegels. De vloerverwarming onder de tegelvloer zorgt voor aangename warmte. Via de deur aan de achterzijde heeft u direct toegang tot de tuin. Voor wie wil vernieuwen: het ruwbouwkarakter van bakstenen en balken vormt een ideale basis voor een nieuwe keuken die bij de rest van de woning past.

EERSTE VERDIEPING
Op de eerste verdieping bevinden zich twee slaapkamers en de badkamer, met vanuit de badkamer ook toegang tot het (potentiële) dakterras.

SLAAPKAMER 1
De hoofdslaapkamer is een ruime kamer aan de achterzijde van de woning met een groot raam dat voor fijne lichtinval zorgt. De kamer is voorzien van airconditioning en er is een ingebouwde kast aanwezig.

SLAAPKAMER 2
De tweede slaapkamer aan de voorzijde is wat compacter van formaat, maar goed inzetbaar als kinderkamer, logeerkamer of thuiswerkplek. Het grote raam geeft uitzicht op de voortuin en de straat.

BADKAMER
De badkamer is ruim opgezet en volledig betegeld, met een douchecabine, zwevend toilet, wastafelmeubel met spiegel en designradiator. Bijzonder is de combinatie van een raam én een deur die opengezet kunnen worden voor natuurlijke ventilatie, waarbij die laatste tevens toegang geeft tot het (potentiële) dakterras. Dat terras biedt zicht over de tuin en de buurt en is naar eigen wens in te richten.

TWEEDE VERDIEPING
SLAAPKAMER 3
Via de vaste trap bereikt u de derde slaapkamer op de zolderverdieping. De twee grote dakramen zorgen voor volop daglicht en geven de kamer een ruimtelijk gevoel. Aan weerszijden zijn kasten weggewerkt achter de schuine wanden, zodat de bruikbare vloeroppervlakte optimaal benut wordt. Een veelzijdige ruimte die dienst kan doen als slaapkamer, maar ook goed te benutten is als atelier, werkkamer of hobbyruimte.

TUIN EN BUITENRUIMTE
Wie de tuin betreedt, begrijpt meteen wat deze woning extra bijzonder maakt. Vanuit het overdekte terras kijkt u uit over een verzorgde tuin met een sierlijk gazon, vaste planten en een imposante volwassen boom die in de zomer voor schaduw zorgt. Bewateren doet u met het opgevangen water uit uw eigen regenton, of middels de (buiten)kraan in de bijkeuken. De tuin is volledig omheind, is voorzien van buitenverlichting en -stopcontacten en beschikt over een vrije achterom.

Aan de zijkant van de tuin staat de garage met openslaande deuren richting de oprit en decoratieve rondboogvensters. Ruim genoeg voor een auto én het nodige gereedschap, of natuurlijk voor uw fietsen. Aan de andere zijde van de tuin bevindt zich de bijkeuken, eveneens bereikbaar vanuit de tuin, met de cv-installatie en een keukenblok met wastafel.

Aan de voorzijde van de woning biedt de ruime bestrate oprit plek aan meerdere auto's.

BIJZONDERHEDEN
- Woonoppervlak 98 m²
- Vloerverwarming in woonkamer en keuken
- Houten balken en bakstenen muren in keuken en hal
- Airconditioning in de hoofdslaapkamer
- Dakterras bereikbaar vanuit de badkamer
- Overdekt terras met overkapping
- Garage en bijkeuken, bereikbaar vanuit de tuin
- Volledig omheinde tuin met vrije achterom
- Houten kozijnen
- Ruime oprit voor meerdere voertuigen

Bent u benieuwd naar wat deze woning u te bieden heeft? Neem contact met ons op en plan een bezichtiging om zelf te ervaren wat hier allemaal mogelijk is.
Lees de volledige omschrijving

Contact

Maison Makelaars Graafschap Midden

Kenmerken

Algemeen

vraagprijs
€ 379.000 kosten koper
Aangeboden sinds
27 maart 2026
Status
Beschikbaar
Aanvaarding
In overleg
Soort woonhuis
Eengezinswoning, 2-onder-1-kapwoning
Soort bouw
Bestaande bouw
Bouwjaar
1955
Soort dak
Pannen
Ligging
In woonwijk

Oppervlakten en inhoud

Wonen
98 m²
Overige inpandige ruimte
10 m²
Gebouwgebonden Buitenruimte
28 m²
Externe bergruimte
23 m²
Perceel
332 m²
Inhoud
404 m³

Indeling

Aantal kamers
4 kamers (3 slaapkamers)
Aantal badkamers
1 badkamer
Badkamervoorzieningen
Douche, toilet, wastafel
Aantal woonlagen
3
Voorzieningen
Airconditioning, dakraam, glasvezel kabel, schuifpui

Energie

Energielabel
G
Verwarming
Cv ketel, vloerverwarming gedeeltelijk
Warm water
Geiser eigendom
Cv-ketel
NEFIT (gas gestookt uit , eigendom)

Kadastrale gegevens

Perceelnaam
Doetinchem M 2465
Oppervlakte
332 m²
Eigendomssituatie
Volle eigendom

Buitenruimte

Tuin
Achtertuin, voortuin
Achtertuin
100 m²
Ligging tuin
Zuidoost

Garage

Capaciteit
1 auto
Voorzieningen
Voorzien van elektra
Bekijk alle kenmerken