rmre@maisonmakelaars.nl 0475 47 58 31

Dorpsstraat 66 Buggenum

€ 5.500 per maand

Omschrijving

Uniek wonen in een kasteel met zwembad en 10 paardenboxen. Kasteel Malborgh in Buggenum biedt een mooie mix van historische pracht, modern comfort en een weelderige tuin. Het Rijksmonument is gerestaureerd met behoud van alle authentieke details.De ligging is ideaal tussen Venlo en Roermond, met snelle toegang tot snelwegen. Ook zeer gunstig gelegen t.o.v. Eindhoven, Maastricht en Düsseldorf.Betoverend pand op een parkachtig perceel met zijn rijke geschiedenis en karakteristieke details, is perfect voor paardenliefhebbers en gezinnen die ruimte en luxe zoeken.>>> WELKOM IN JE EIGEN SPROOKJE! <<>> KASTEEL MALBORGH IS MEER DAN EEN HUIS; HET IS EEN STUKJE GESCHIEDENIS <<<1E VERDIEPING:Neem je in de centrale hal de houten bordestrap? Dan kom je op een ruime overloop op de eerste verdieping. Hier zijn maar liefst 6 kamers. 5 ruime slaapkamers, 1 hobby- of werkkamer en 2 moderne badkamers.De ouderslaapkamer met visgraatparketvloer heeft een walk-in closet en badkamer en-suite. De badkamer heeft een inloopdouche, dubbele wastafel en toilet.Het uitzicht vanuit de ouderslaapkamer is prachtig. Je kijkt zo over de weilanden helemaal tot aan de Maas.De tweede badkamer heeft een ligbad, aparte douche, wastafel en toilet.In het torentje heb je de mogelijkheid om nog een 6e slaapkamer te maken of een mooie hobby- of werkruimte.2E VERDIEPING:Ga je nog een trap op dan kom je op de tweede verdieping, de zolder. Deze is helemaal authentiek met een prachtig balkenplafond.Je geniet hier van de oude details. Zelfs het bevoorradingsluik met takel rad voor de bevoorrading is er nog.Ook vind je op de zolder de CV installatie.BUITENPLAATS:En dan de tuin… Overal waar je kijkt is het prachtig. Je hebt veel privacy en de tuin is onderhoudsvriendelijk. Jij ziet je al zitten heerlijk genietend van de rust. Of nodig in het weekend vrienden of familie uit voor een gezellige borrel of barbecue.Is het warm weer dan neem je een heerlijke duik in het zwembad.Verder is de tuin voorzien van een zwembadhuis en een beregeningsinstallatie met eigen bron.Jouw (klein)kinderen hebben eindeloos speelplezier in de grote tuin met veel verstopplekken.Heb jij iets met auto’s? Jouw bijzondere voertuigen op wielen staan droog en uit het zicht in de royale garage met overkapping.Ben jij een paardenliefhebber? Dan is dit dé droomplek voor jou. Je hebt hier een paardenstalling met wei én maar liefst 10 boxen, een zadelkamer, een wasplaats en opslag. En achter de paardenstalling liggen een longeercirkel en een rijbak.>>> JOUW DROOM WORDT HIER WERKELIJKHEID! <<
Lees de volledige omschrijving

Contact

Maison Makelaars RMRE

Kenmerken

Algemeen

Prijs
€ 5.500 per maand
Aangeboden sinds
17 maart 2026
Status
Beschikbaar
Aanvaarding
Per direct
Soort woonhuis
Landhuis, vrijstaande woning
Soort bouw
Bestaande bouw
Bouwjaar
1903
Soort dak
Overig
Ligging
Aan rustige weg, vrij uitzicht

Oppervlakten en inhoud

Wonen
538 m²
Overige inpandige ruimte
32 m²
Perceel
9.095 m²
Inhoud
2.287 m³

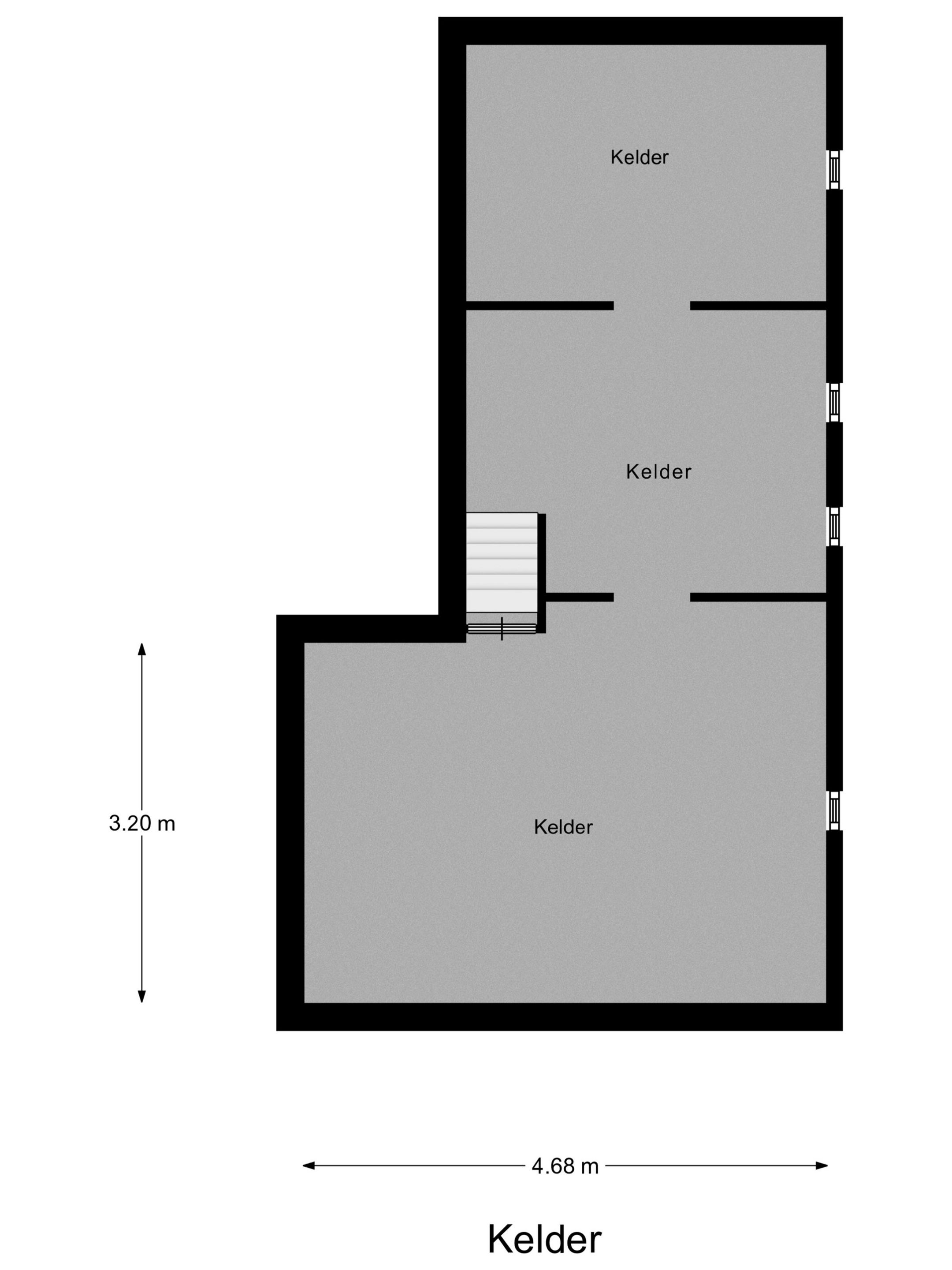
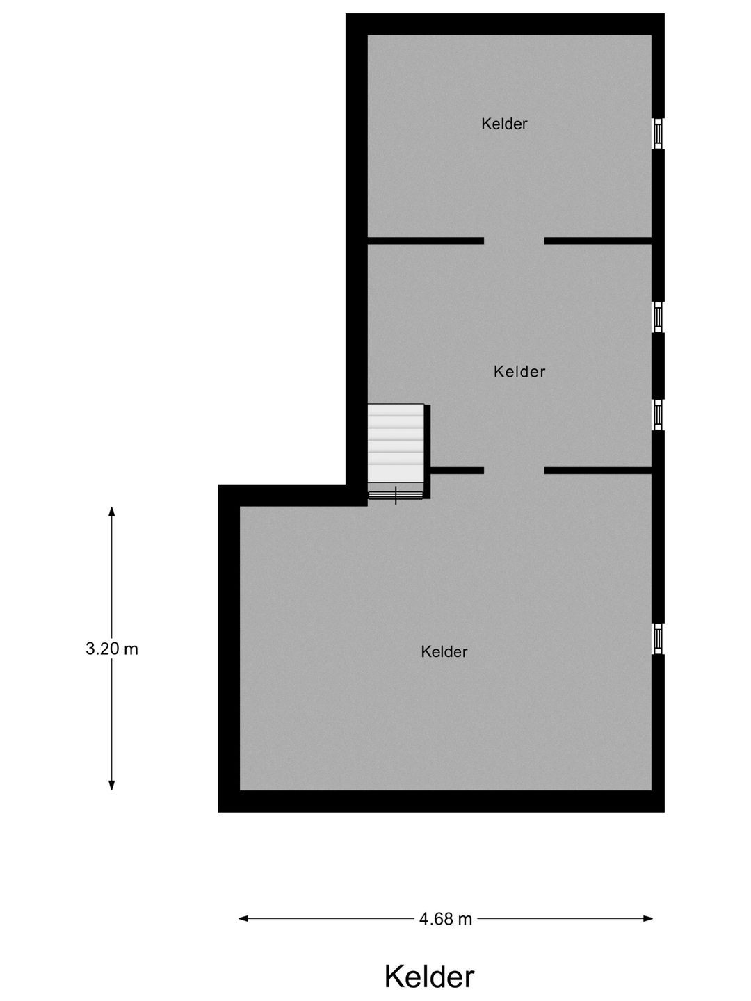
Indeling

Aantal kamers
7 kamers (4 slaapkamers)
Aantal badkamers
2 badkamers
Aantal woonlagen
4

Energie

Verwarming
Cv ketel
Warm water
Cv ketel

Kadastrale gegevens

Perceelnaam
Leudal B 1265
Oppervlakte
9095 m²
Eigendomssituatie
Volle eigendom
Bekijk alle kenmerken