gm@maisonmakelaars.nl 0314 39 26 84

Halseweg 54 06 Halle

Vraagprijs € 385.000 k.k.

Omschrijving

Gelegen in een oase van rust, op een prachtig groen perceel in Halle, vindt u deze bijzondere, geheel ingerichte recreatiewoning.
Met zijn moderne glasoverkapping boven het tuinterras, drie comfortabele slaapkamers (geschikt voor zes personen), twee complete badkamers, ruime tuin én zonnig dakterras vormt dit de perfecte plek om tot rust te komen. De moderne afwerking en het fraaie bosrijke uitzicht maken dit een unieke kans voor wie droomt van een eigen toevluchtsoord midden in de natuur.

IN HET KORT
● Sfeervolle recreatiewoning uit 1998
● Geheel ingericht, klaar om zo intrek te nemen
● Gelegen op kleinschalig vakantiepark Buitengoed Bos en Enk
Rondom het grote gazon is het perceel omzoomd met groen dat zorgt voor alle privacy
● Drie slaapkamers verdeeld over twee verdiepingen (geschikt voor zes personen)
● Twee badkamers
● Moderne glasoverkapping boven het grote tuinterras
● Zonnig dakterras op het westen bereikbaar vanuit beide slaapkamers boven
● Twee garagedeuren geven toegang tot het geheel onderkelderde pand.

ALGEMEEN
Deze bijzondere recreatiewoning is gelegen aan de rand van het kleinschalige en bosrijke vakantiepark Buitengoed Bos en Enk in Halle, een prachtige plek in de Achterhoek. Het park biedt de perfecte combinatie van gezelligheid en privacy: u geniet van de voordelen van een vakantiepark met gelijkgestemde buren, terwijl u toch alle rust en ruimte heeft die u zoekt. Het gebied kenmerkt zich door zijn afwisselende natuur met bossen, landerijen en heuvels - ideaal voor lange wandelingen en fietstochten. De ligging aan de Halseweg (N330) zorgt voor optimale privacy terwijl toch alle voorzieningen binnen handbereik blijven. Via de nabijgelegen uitvalswegen bent u snel in Doetinchem of richting de snelwegen. Hier kunt u genieten van de stilte van het bos en de frisse buitenlucht, ver weg van de drukte van alledag.

In de zomer van 2024 is groot onderhoud aan het huis uitgevoerd met nieuwe dakbedekking, buitenmuren rondom geïmpregneerd zodat de lichte bakstenen nog jaren vrij van aanslag blijven, binnen nieuwe vloeren en verfwerk, en al het hout binnen en buiten opnieuw geverfd. Het geheel is goed voor vele jaren plezier.

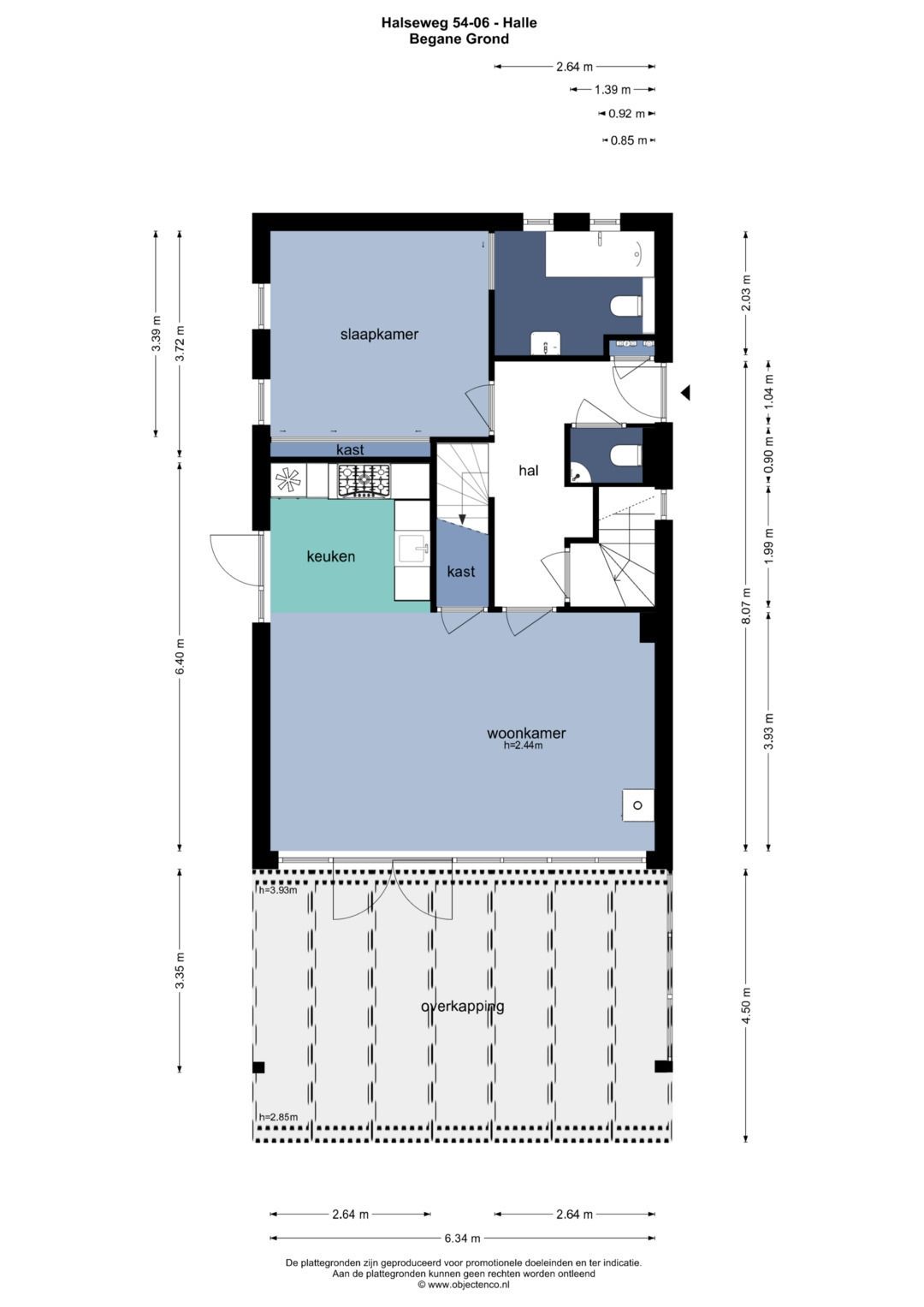
BEGANE GROND
ENTREE
Via de zijkant van het pand bereikt u de entree van deze bijzondere recreatiewoning, al kunt u ook inpandig vanuit de garage naar binnen. U kunt met de auto tot naast de voordeur komen. De deur is voorzien van een Tedee automatisch slot. U bepaalt zelf, op afstand, wanneer en wie er toegang tot de woning heeft met de Tedee app.

De hal biedt toegang tot alle vertrekken op de begane grond en is voorzien van een praktische tegelvloer. Hier regelt u de mechanische luchtafzuiging. De lichte, moderne afwerking zorgt direct voor een vakantiegevoel en nodigt uit om binnen te stappen en te ontspannen.

WOONKAMER
Het hart van de woning wordt gevormd door de lichte woonkamer met zijn grote raampartijen die uitkijken over het groene perceel. De ruimte is smaakvol ingericht met lichte meubels, een gezellig houtkacheltje en heeft openslaande deuren naar het terras met de glasoverkapping. In het eetgedeelte staat een grote witte tafel met zes leren stoelen. Door de open verbinding met de keuken ontstaat een prettige leefruimte waar u met uw hele gezelschap kunt samenkomen. Aan opbergruimte geen gebrek: een inbouwkast onder de trap biedt extra bergruimte voor alles wat u liever uit het zicht bewaart. De tijdloze waterafstotende laminaatvloer en witte wanden vormen een rustige basis waar u helemaal tot rust kunt komen. De warmgroene accentwand is een stijlvolle knipoog naar de bosrijke omgeving.

Mocht u de temperatuur in huis willen regelen zonder ernaartoe te moeten, dan kan dat met de smart thermostaat via wifi. Ook de temperatuur van de koel-/vriescombinatie kan via wifi geregeld worden. Handig!

BUITENTERRAS
Een van de hoogtepunten van deze recreatiewoning is het geheel met glas overkapte buitenterras over de hele breedte van het huis en aansluitend aan de woonkamer. Het is gewoon de perfecte plek voor een ontspannend ontbijt, genietend van de ontwakende natuur in uw privétuin in de ochtendzon.

De ruime, lederen bank nodigt uit tot de hele dag genieten, en vooral als het regent. U blijft droog terwijl de wereld om u heen nat wordt. Een bijzondere ervaring.

KEUKEN
De moderne keuken is voorzien van alle gemakken die u nodig heeft tijdens uw verblijf. De strakke kastjes in houtkleur, gecombineerd met groene tegels als achterwand, geven de ruimte een aangename uitstraling. De keuken beschikt over een inductiekookplaat, afzuigkap, losse koelkast met diepvries, en vaatwasser, plus alle potten, pannen, bestek, schalen, glazen en koppen die u maar nodig kan hebben om heerlijke maaltijden te bereiden. Via de keukendeur stapt u zo op het terras aan de zuidkant van de woning.

SLAAPKAMER 1
Op de begane grond bevindt zich een comfortabele slaapkamer met grote ramen die uitkijken over de tuin. Er staat een 210 x 180 cm bed, in tweeën te delen, met een nachtkastje aan beide zijden en dimbare nachtlampjes. Er hangt een rustige, ontspannen sfeer. De ruimte is verder voorzien van een grote, ingebouwde garderobekast met spiegelkastdeuren die deze master bedroom nog groter doen lijken.

BADKAMER 1
Écht volledig tot rust komen? Dat doet u in uw eigen luxe badkamer aansluitend aan de master bedroom. Deze ruimte beschikt over een groot bad/whirlpool waarin u na een lange wandeling of fietstocht heerlijk kunt ontspannen. Daarnaast vindt u hier een toilet en wastafelmeubel. De cremekleurige tegels zorgen voor een frisse, doch warme uitstraling en de strategisch hooggeplaatste ramen bieden extra daglicht.

EERSTE VERDIEPING
Via de vaste trap in de hal bereikt u de eerste verdieping waar zich nog twee slaapkamers en een moderne badkamer bevinden. De overloop geeft toegang tot alle vertrekken.

SLAAPKAMER 2
De tweede slaapkamer kijkt uit op het westen en biedt ruimte aan de twee eenpersoonsbedden die tot een ruim tweepersoonsbed geschoven kunnen worden. De groene accentmuur geeft een leuke twist en de moderne, strakke kastenwand zorgt voor voldoende opbergruimte. Via de openslaande deur heeft u direct toegang tot het dakterras met zon tot laat in de avond.

SLAAPKAMER 3
De derde slaapkamer spiegelt de tweede slaapkamer en geeft toegang tot het hetzelfde ruime dakterras over de hele breedte van het huis.

BADKAMER 2
De tweede badkamer tussen deze twee slaapkamers op de eerste verdieping is modern en praktisch uitgevoerd. Er is een betegelde douchecabine met glazen douchewanden, wastafel met spiegelverlichting en een sanibroyeur toilet. Het brede, hoge raam geeft alle privacy en natuurlijke ventilatie terwijl de cremekleurige tegels de ruimte een prettige uitstraling geven. De mechanische, automatische vochtafzuiging houdt de ruimte droog.

DAKTERRAS
Op het dakterras kunt u heerlijk genieten van de middag- en avondzon met een geheel ander uitzicht over de groene omgeving. De perfecte plek voor de avondborrel.

GARAGE
Onder de woning bevindt zich, zo groot als het oppervlak van het huis zelf, de garage/kelder met twee garagedeuren. Er is niet alleen plaats voor meerdere auto's, maar ook aan fietsen, tuinspullen en andere benodigdheden op de planken aan twee muren. Hier bevinden zich ook de cv-installatie, de centrale stofafzuiging, de A++ wasmachine en B+ wasdroger, en de mechanische luchtafzuiging. De praktische indeling maakt het een ideale plek voor alle opslag. Aan de andere wand is de grondwaterpomp en computergestuurde tuinberegeningssysteem bevestigd.

TUIN
Rondom het grote speelgrasveld dat kort gehouden wordt door de robotmaaier ligt een groentetuin/border-in-aanleg. Zicht van de noord- en oostkant wordt afgeschermd door altijd groene struiken en bomen. De zuidkant grenst aan het niet bebouwde mandelige perceel waar meer dieren dan mensen komen. De hoge bomen zorgen voor koelte en schaduw, ook op het heetst van de dag. Als u een echte zonaanbidder bent, kunt u de hele dag zonnebrand blijven smeren. Vanaf de vroege ochtend op het overdekte tuinterras, in de middag op het zuidterras keukenzijde en tot laat in de avond op het boventerras.

Kortom, u kunt het hele jaar door van het buitenleven genieten, ongeacht het weer. Regelmatig komen reeën, eekhoorns, de parkpauw, en vele vogels langs. Tevens nodigt het gazon uit tot ontspanning en spelletjes. Buitenverlichting en tuinmeubilair maken het plaatje compleet.
Als u zich aansluit bij de online WhatsApp- of Signal-groep van alle Bos & Enk bewoners, kunt u delen in de sociale activiteiten voor en door Bos en Enkers. Zo leert u uw buurtgenoten snel kennen.

BIJZONDERHEDEN
● Energielabel B
● Drie slaapkamers en twee badkamers
● Whirlpool in de badkamer op de begane grond
● Moderne glasoverkapping met groot terras met meubilair
● Zonnig dakterras bereikbaar vanuit beide slaapkamers boven
● Zeer grote garage onder het pand met verscheidene apparaturen
● Complete keuken met moderne apparatuur
● Tuinverlichting en buitenkraan
● Toegang via zijentree of inpandig via garage
● Groot onderhoud uitgevoerd in 2024


Recreatief gebruik is het gehele jaar door toegestaan, mits de bewoner wel over een ander hoofd woonverblijf beschikt.
Mandeligheid: onverdeeld aandeel in wegen, parkeerhavens en groenvoorzieningen etc. met een Vereniging van Eigenaren


Bent u op zoek naar een uniek toevluchtsoord waar u helemaal tot rust kunt komen? Dan is deze geheel ingerichte recreatiewoning in Halle uw bezichtiging meer dan waard. Neem contact met ons op voor een persoonlijke rondleiding en ervaar zelf de rust en ruimte die deze bijzondere plek u te bieden heeft!
Lees de volledige omschrijving

Contact

Maison Makelaars Graafschap Midden

Kenmerken

Algemeen

vraagprijs
€ 385.000 kosten koper
Aangeboden sinds
6+ maanden
Status
Beschikbaar
Aanvaarding
In overleg
Soort woonhuis
Bungalow, vrijstaande woning
Soort bouw
Bestaande bouw
Bouwjaar
1998
Soort dak
Pannen
Ligging
Beschutte ligging, in bosrijke omgeving

Oppervlakten en inhoud

Wonen
101 m²
Overige inpandige ruimte
63 m²
Gebouwgebonden Buitenruimte
51 m²
Perceel
1.095 m²
Inhoud
568 m³

Indeling

Aantal kamers
4 kamers (3 slaapkamers)
Aantal badkamers
2 badkamers
Badkamervoorzieningen
Douche, toilet, wastafel
Aantal woonlagen
2
Voorzieningen
Glasvezel kabel, mechanische ventilatie

Energie

Energielabel
B
Isolatie
Dakisolatie, dubbel glas, muurisolatie, vloerisolatie
Verwarming
Cv ketel
Cv-ketel
Atag (gas gestookt combiketel uit 2021, )

Kadastrale gegevens

Perceelnaam
Bronckhorst AC 535
Oppervlakte
1095 m²
Eigendomssituatie
Volle eigendom

Buitenruimte

Tuin
Tuin rondom

Garage

Capaciteit
2 auto's
Voorzieningen
Metelektrischedeur, voorzien van elektra, voorzien van verwarming
Bekijk alle kenmerken